- 注册
- 登录
- 小程序
- APP
- 档案号
德国gmp建筑设计有限公司 · 2026-03-25 21:45:06

© CreatAR Images
由上海外滩投资开发(集团)有限公司全新打造的南外滩外马路车库改造项目,坐落在一个周边现状建筑复杂多元的街区。项目用地虽然狭小,但既可饱览上海黄浦江的怡人景致,又可直通南外滩波浪形滨水步道。
Situated on a very tight plot in a divers neighborhood of existing buildings, the South Bund Garage Renovation project, newly completed by the Shanghai Bund Investment (Group) Co., Ltd., offers pleasant views to Shanghai’s Huangpu River and direct access to the South Bund Promenade.

波浪形的岸线设计,2018 © CreatAR Images
南外滩滨水步道的改造升级,是上海黄浦江两岸公共空间贯通工程的重要组成部分。该项目由 gmp 与 WES 魏斯景观建筑联袂打造,旨在将昔日的工业遗存转化为全长约 45 公里的城市滨水绿带。
As a pivotal element of the comprehensive master plan for the Huangpu River banks, the South Bund Waterfront has undergone a remarkable metamorphosis, marking the grand transition of Shanghai’s industrial heritage into a 45-kilometer public green corridor. Jointly designed by gmp and WES Landscape Architecture, this 2.2-kilometer undulating "wave" promenade has rapidly emerged as a new landmark for the city.

原转运车停车楼,2018 © CreatAR Images

新建屋顶花园以及浦江波浪形滨江岸线,2025 © CreatAR Images
本车库改造项目便坐落于这段 2.2 公里长的波浪形亲水岸线旁。南外滩不仅缝合了老城厢与滨水空间的地理断层,更在生活与休闲、历史与未来之间架起了一座交织的桥梁。
Situated at the heart of this intersection between humanity and nature is the Garage Renovation Project, which sits in immediate proximity to the vibrant waterfront. The South Bund serves as a seamless conduit, bridging the nostalgic charm of the Old Town with the modern rhythm of the waterfront. Here, the depth of Shanghai's history converges with the vitality of its future, creating a unique urban tapestry where daily life meets leisure.

码头设施拆除后的原转运车停车楼建筑,2018

改造后现状,2025 © CreatAR Images
项目所在区域位于上海老城厢外东南部滨江地带。历史上,作为上海历史码头区的一部分,沿江分布着仓库、商人住宅和各色货物码头。近几十年来,随着黄浦江货物港口设施逐渐迁出市中心,该区域随后被用作上海市区的垃圾转运港——地块正前方设有垃圾装卸码头。上世纪九十年代,垃圾转运车车库建于此地。近年来,该区域内的多幢建筑因其丰厚的历史意义而被列入各级文物保护建筑名录。
Historically, the area was located in the south of Shanghai’s Old Town and part of the city’s port area, with warehouses, merchants’ dwellings and docks along the river. In recent decades, after the Shanghai port facilities had been moved out of the city center, this area was used as garbage transportation port for downtown Shanghai, with a garbage loading dock just in front of the plot, on the Huangpu riverbank. A garage for garbage trucks had been built on the site in the 1990ies and had subsequently been put under heritage protection due to its historical significance for the area.

建筑设计概念 © gmp Architekten
根据建筑的历史现状,该项目的一项重要任务是探讨如何重新诠释并尊重现有建筑的历史价值。由于现有车库建筑的层高仅为3.20米,且宽阔的坡道占据了大部分楼层空间,原建筑用于现代办公用途并不合适。经过一系列的专家论证会之后,重建的前提条件之一是保留原建筑的高度和整体轮廓。
Because of the protection status, one important task of the project was to examine how the heritage of the existing building could be reinterpreted and respected. As the existing structure had a floor-to-floor height of merely 3.20 m and wide ramps taking up most of the floor space, it was acknowledged by the authorities as not suitable for modern office use. Nevertheless, after a series of expert deliberations, one of the preconditions for redevelopment was to keep the height and general outlines of the former building.

© CreatAR Images

© CreatAR Images
在这一前提条件下,gmp设计了一栋钢结构六层办公建筑。其屋顶花园令人联想到原有建筑的宽敞屋顶露台。由于场地面积有限,地面停车位设置在后部首层架空区域。为在限定高度内容纳六层空间,各层层高均控制在3.90米。为使办公区域达到3米净高,结构钢梁腹板开孔,从而将机电系统整合于结构高度之内。作为办公功能的补充,于二层设置了员工食堂,厨房则位于地下一层内。
Under these preconditions, a 6-floor office building was designed, with a roof garden recalling the spacious roof terrace of the former garage. As the site is very small, on-ground parking was only possible on ground level under the building. To fit 6 levels within the given height limit, floor heights were limited to 3.90 m. In order to achieve a clear height of 3 m in the office areas, steel structure with perforated steel beams was used to accommodate the MEP systems within the structural height. In addition to office functions, a staff canteen is planned on F2, with the kitchen located in the basement.

© CreatAR Images

© CreatAR Images
建筑本身采用温暖的古铜色调铝制玻璃幕墙立面。朝向浦江一侧,一层通高的通透玻璃幕墙单元,呈强烈的锯齿状折叠;而面向地块西侧的“城市面”,立面单元逐渐展开并覆以穿孔铝板。穿孔面板兼具新风引入与排烟功能。
The building features an aluminum glass curtain wall facade in a warm bronze tone. The vertical facade elements, spanning always over one floor, are folded in a strong zigzag and are fully transparent towards the river side, while towards the western "city side" of the plot, the facade is gradually straightened out and clad with perforated aluminum panels. The perforated panels serve fresh air intake and smoke exhaust.

立面大样 © gmp Architekten

© CreatAR Images

逐渐曲折过渡的立面单元以及用于自然通风排烟的穿孔铝板区域 © CreatAR Images
不同楼层错落有致的露台打破了盒式建筑体量的单调立面。使建筑的“盒子”结构呈现生动变化,并开辟出不同方向的浦江视野。从内部看,折叠立面朝向也定义了黄浦江上游与下游的双向景观。
Balconies of different sizes on varying floors disrupt the facade of the box-type building volume and allow for vivid breaks of the "box" and views in different directions. From within, the folded façade frames views both upstream and downstream along the Huangpu River.

Balcony 露台与室内景色 © CreatAR Images

Balcony 露台与室内景色 © CreatAR Images

Balcony 露台与室内景色 © CreatAR Images
建筑设计委托:2018
设计:曼哈德·冯·格康和尼古劳斯·格茨以及玛德琳·唯斯
项目负责人:贺繁漪,王敏宇
设计团队: 弗朗切斯科·彭诺尼,金兆畇,高倚天,马倩宇,杨楚豪,孙涛,谭子敏,亚历山大·布尔格
中国项目管理:蔡磊
中方合作设计:华东建筑设计研究院有限公司
业主:上海外滩投资开发(集团)有限公司
建筑面积:8624平方米
Commission 2018
Design Meinhard von Gerkan and Nicolaus Goetze with Magdalene Weiss
Project leader Fanny Hoffmann-Loss, Wang Minyu
Design team Francesco Pennoni, Jin Zhaoyun, Gao Yitian, Ma Qianyu, Yang Chuhao, Sun Tao, Tan Zimin, Alexander Buerger,
Project Management in China Cai Lei
Partner Office in China East China Architectural Design & Research Institute Co., Ltd.
Client Shanghai Bund Investment (Group) Co., Ltd.
GFA 8,624 sqm

总平面图 © gmp Ar c hitekten

首层平面图 © gmp Ar chite kten

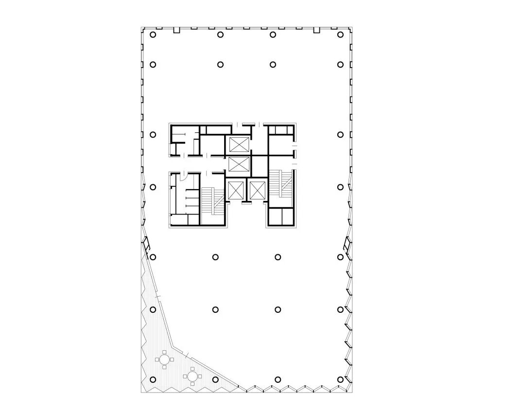
三层平面图 © gmp Ar chitekten

剖面图 © gmp Ar chitekten
特别声明
本文为自媒体、作者等档案号在建筑档案上传并发布,仅代表作者观点,不代表建筑档案的观点或立场,建筑档案仅提供信息发布平台。
23
好文章需要你的鼓励
参与评论
请回复有价值的信息,无意义的评论将很快被删除,账号将被禁止发言。
评论区