- 注册
- 登录
- 小程序
- APP
- 档案号
德国gmp建筑设计有限公司 · 2025-12-16 18:48:03

© CreatAR Images
汕头潮宏基广场位于汕头市濠江区中信滨海新城核心位置,在片区开发轴线上增添了一处集公共与私用功能于一体的城市建筑群。gmp·冯·格康,玛格及合伙人建筑师事务所将潮宏基集团总部打造为由办公塔楼、博物馆与公寓楼组成的混合功能综合体。开放的首层空间与公共门厅使建筑群与周边社区自然融合,并同滨海文化轴线形成连续的城市公共序列。
The CHJ Plaza, located at the heart of CITIC Binhai New Town in the Haojiang District of Shantou, adds a major cultural and urban development impulse to the district’s growth corridor. Designed by architects von Gerkan, Marg and Partners (gmp), the new headquarters complex for the jewelry manufacturer combines public and private uses in a mixed-use ensemble comprising an office tower, museum, and residential tower. Open ground-floor zones and a publicly accessible foyer weave the development into the surrounding neighborhood and connect it directly to the waterfront cultural axis.

© CreatAR Images
汕头位于广东东部韩江三角洲。与历史核心区隔海相望的南岸,中信滨海新城正沿海岸逐步建设。总体规划以高密度住宅与绿化城市结构相结合,通过开放空间体系与精细路网,将新建的居住区与文化设施在功能与空间上紧密联系。
Shantou lies in the Han River Delta in eastern Guangdong Province. On the bay’s southern shore — opposite the historic city center — CITIC Binhai New Town is taking shape as a multi-phase waterfront development. Its master plan blends high-density residential uses with a green, pedestrian-friendly urban structure defined by public open spaces and a filigree network of pathways linking the new residential and cultural districts both functionally and spatially.

© CreatAR Images
在这一城市发展语境下,位于港湾之畔的潮宏基广场占据了关键位置,与其东侧展示潮汕物质与非物质文化遗产的潮汕历史文化博览中心共同构成片区新的文化核心。新建的博物馆向公众开放业主收藏的中国历史珠宝与“花丝镶嵌”的非遗工艺,并在建筑规划中与办公、居住功能共同组成组织清晰的整体。
Within this context, CHJ Plaza plays a pivotal role. Together with the adjacent Chaoshan Exhibition Center to the east — showcasing key elements of the region’s material and immaterial cultural heritage — it forms the neighborhood’s new cultural center. The museum creates a public venue that opens the client’s collection of historic Chinese jewelry and gold-thread artifacts to a wider audience. At the same time, the overall complex brings together work, culture, and living in a clearly organized architectural composition.


© CreatAR Images
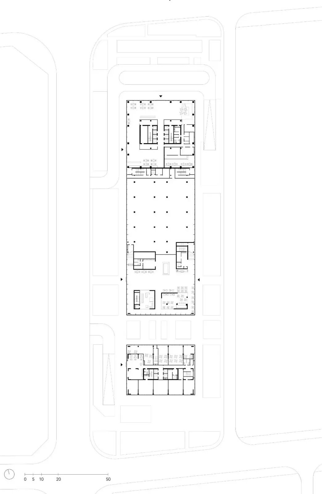
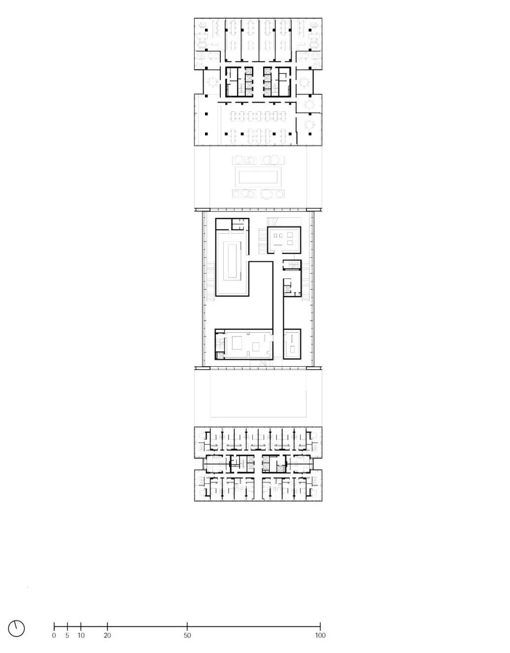
设计的核心理念是在总体规划的体量内进行三段式布局:北侧细长的办公塔楼承载潮宏基集团总部功能;紧凑的博物馆建筑是整个建筑群的核心并延续了城市文化轴线。博物馆内部采用“屋中屋”策略设置独立展箱,以便控制敏感展品的光照与温湿度。连桥与开放式阶梯串联各展览空间,形成连续的参观流线,同时在不同节点提供多角度观展体验。一层通道与公共门厅将博物馆引入城市以及片区的公共文化结构。
The design concept divides the overall volume specified by the master-plan into three parts: a slender office tower to the north that houses the CHJ Group headquarters; the compact museum that continues the cultural axis and forms the cultural heart of the ensemble; and a residential tower to the south completing the composition. Inside the museum, a sequence of self-contained “exhibition boxes,” conceived as structures within the structure, ensures optimal lighting and climate conditions for the delicate artifacts. Bridges and open stairways guide visitors through the exhibition circuit and offer varied perspectives on the collection. Ground-floor passageways and the public foyer integrate the museum seamlessly with the city and its cultural axis.


© CreatAR Images
南侧的公寓塔楼为建筑群的最高点,其后退式布局为住户提供面向港湾与山体景观的开阔视野。三栋建筑的高度分级回应功能需求与城市规划理念,共同构筑滨海新城的天际线。
The southern residential tower marks the high point of the composition. Set back on its site, it offers panoramic views toward the bay and nearby mountain landscape. The stepped heights of the three volumes respond both to programmatic requirements and to the broader urban design concept, defining a new silhouette along the waterfront.


© CreatAR Images
统一的白色铝板幕墙将办公楼、博物馆和公寓塔楼整合为协调的视觉整体。各建筑体均以大面积玻璃幕墙为特征,强化了建筑群的整体性,幕墙的功能性分别回应了不同的建筑用途:办公塔楼通过水平错动与垂直切面形成层次丰富的立面,这种立体感延续至内部两个空中大堂;博物馆的通透外壳强化其公共属性;公寓塔楼的竖向立面肌理整合自然通风构件与技术系统。露台、采光丰富的内部空间与屋顶花园进一步提升了建筑的社会价值与生态品质。
A continuous white aluminum façade band visually unifies the office tower, museum, and residential tower into a single ensemble. Large expanses of glass characterize all three buildings and emphasize the coherent architectural expression. At the same time, each façade is tailored to its respective function: the office tower’s glass surface gains depth through horizontal off-sets and vertical cut-outs that continue inside as two central sky lobbies; the museum’s transparent envelope underscores its public role; and the vertically articulated residential façade incorporates natural ventilation elements and technical systems. Terraces, generous lightwells, and a rooftop garden add further social and environmental value to the development.

© CreatAR Images
设计: 曼哈德·冯·格康与施特凡·胥茨及托比亚斯·凯尔
竞赛阶段设计团队:马切伊·巴克、迪娜·博尔扬斯、扬-皮特·德姆尔、博扬·科切夫斯基、迪米特里斯·丹尼尔·米歇尔、雅库布·索比切夫斯基、蒂洛·策默、张禾涵、张旭、朱世游
实施阶段项目负责人: 博扬·科切夫斯基
实施阶段设计团队: 安德烈亚斯·莫埃、迪米特里斯·丹尼尔·米歇尔、张禾涵、张天硕、朱世游、杜丰泽
中国项目管理:秦炜、田雪莉、徐吉
Design Meinhard von Gerkan and Stephan Schütz with Tobias Keyl
Competition Design Team Maciej Bak, Dinah Borjans, Jan Peter Deml, Bojan Kocevski, Dimitris Daniele Michele, Jakub Sobiczewski, Thilo Zehme, Zhang Hehan, Zhang Xu, Zhu Shiyou
Project Lead, Detailed Design Bojan Kocevski
Detailed Design Team Andreas Maue, Dimitris Daniele Michele, Zhang Hehan, Zhang Tianshuo, Zhu Shiyou, Du Fengze
Project Management, China Qin Wei, Tian Xueli, Xu Ji

总平面图 © gmp Architekten

首层平面图 © gmp Architekten

三层平面图 © gmp Architekten

剖面图 © gmp Architekten
特别声明
本文为自媒体、作者等档案号在建筑档案上传并发布,仅代表作者观点,不代表建筑档案的观点或立场,建筑档案仅提供信息发布平台。
56
好文章需要你的鼓励
参与评论
请回复有价值的信息,无意义的评论将很快被删除,账号将被禁止发言。
评论区