- 注册
- 登录
- 小程序
- APP
- 档案号
构筑空间 · 2024-07-09 09:35:11

© 刘国威
金属砖尺度接近青砖的排列,既平易近人,又耳目一新,构成了整个场所中最大面积的视觉记忆。
感谢 物柔研究所 对gooood的分享
熹汤汤泉,位于深圳龙华区,是一座现代水疗中心,宛如城市喧嚣中的一处幽静世外桃源,探讨情感体验的空间哲学。游走于回溯式的三层游廊空间,每层都设计了独特的功能区:洗浴、泡汤、按摩、理疗、餐饮、休憩和娱乐,散发出柔和平静的氛围,唤醒人与空间的共振体验,追求细腻的感受胜过单纯的视觉冲击。材质选择兼容并序,采用了木材、石材、金属砖、玻璃砖、马赛克、微水泥饰面等材料,在差异化的空间氛围里形成契合统一的感官体验。


▲室内空间概览 ©刘国威
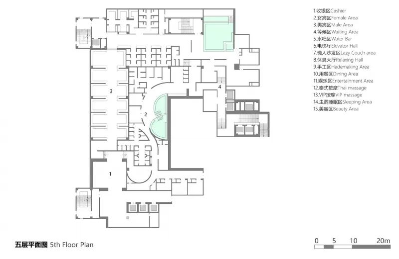
五层的水疗区,从大厅分出男女宾区,经过精巧的更衣室和淋浴间,步入泡池区域。女宾区偏柔软,半圆形的水池在白麻石前截断,仿佛立于山岩之下,置身于泉涌之间;男宾区则爽朗,从洗漱空间可以窥见尽头的蔚蓝,空间中漫反射形成的蓝色预告水的事件发生,方形泡池又连接着另外一端温热的桑拿区,其色温设置也富有昭示性,让人仿佛游走在冰川与火焰之间。两处通过尽头的楼梯隧道拾级而下,重新交织,一起从晦暗的指引中,抵达明亮的水吧。

▲功能与路径 ©物柔研究所


▲门厅 ©刘国威


▲接待台 ©刘国威


▲更衣室(男宾区) ©刘国威

▲淋浴区(男宾区) ©刘国威

▲泡池(男宾区) ©刘国威


▲桑拿(男宾区) ©刘国威

▲洗漱空间与泡池(男宾区) ©刘国威

▲出口(男宾区) ©刘国威

▲洗漱空间(女宾区) ©刘国威

▲洗浴空间(女宾区) ©刘国威

▲梳妆区域(女宾区) ©刘国威

▲梳妆区域(女宾区) ©刘国威

▲桑拿区域(女宾区) ©刘国威



▲泡池区域(女宾区) ©刘国威
休息大厅位于四层中央区域,四周回廊采用玻璃与串联的金属砖作为围合材料,内外形成两道屏障,既隔绝声音干扰,又形成具有通透性的隐私空间,卧躺大厅,明暗有别,仿佛置身于影幕之中,阑珊灯火中,上映缓缓的人影流连。金属砖尺度接近青砖的排列,既平易近人,又耳目一新,构成了整个场所中最大面积的视觉记忆。

▲休息大厅 ©刘国威



▲玻璃与串联的金属砖作为围合材料 ©刘国威


▲具有通透性的隐私空间 ©刘国威


▲仿佛置身于影幕之中 ©刘国威

▲懒人沙发区与休息大厅的连接 ©刘国威
电梯厅出口的尽头,光线引导视线至洞穴般的懒人沙发区,通过斜列的木墙做了软性分割,镂空的部分让木墙成为屏风栅栏,整个空间无尽连续,但每个局部又具有独立性,让人放下“社交恐惧”的障碍,在独处与众聚的选择游刃有余。同时,通过降低灯光的设置,将视觉重心留在低处空间,塑造静谧轻灵的意境体验。包裹的沙发、低矮的灯光、昏黄的木色,形成了一种富有安全感的空间,令人沉心静气。


▲懒人沙发区 ©刘 国威
沙发区紧邻的餐厅别具一格,烤肉区采用原木作为空间的主调,营造炭火的原始氛围感,黑色瓷砖反射出火焰与木质的对比,将疗愈的氛围转变成炉火的热烈,每个空间都如同一个充满事件与情绪感知的舞台。


▲水吧区 ©刘国威

▲手工区 ©刘国威


▲用餐区 ©刘国威



▲用餐区_烤肉 ©刘国威
在这片回荡着光影与水波的静谧天地中,人们不仅得以放松身心,更能在每一个细微的感官刺激中找到心灵深处的共鸣。汤泉空间如同一部精巧的情感交响曲,每一次抵达都是一场新的体验,每一个角落都是一幅独特的画卷,让人们逃离都市纷繁与熙攘,在自然与艺术的融合中重新找回内心的平静。




▲夹层区 ©刘国威
海纳百川,有容乃大,不只是水疗中心,这些变换无垠的空间也组成了承载情绪和感官的容器,材料、灯光、尺度在使用者的演绎下而富有戏剧性的变化,体现了物柔研究所对柔性空 间的深刻理解与表达。

▲电梯厅出口 ©刘国威

▲电梯厅出口 ©刘国威


▲灯光细部 ©刘国威
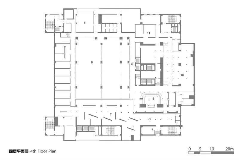
项目图纸

▲四层夹层平面 ©物柔研究所

▲四层平面 ©物柔研究所

▲五层平面 ©物柔研究所
面积:11000㎡
项目设计:2023
完成年份:2024
建筑师:物柔研究所
主创设计师:严逸飞
设计团队:严逸飞、郭若成、丁秋垚、叶陈、王曦、王奇琪
项目类型:水疗中心、酒店、室内设计
公司网站:https://objectender.com/
联系邮箱:contact@objectender.com;pr@objectender.com
摄影师:刘国威
地点:中国深圳
版权©www.gooood.cn,欢迎转发,禁止以gooood编辑版本进行任何形式转载
特别声明
本文为自媒体、作者等档案号在建筑档案上传并发布,仅代表作者观点,不代表建筑档案的观点或立场,建筑档案仅提供信息发布平台。
11
好文章需要你的鼓励
参与评论
请回复有价值的信息,无意义的评论将很快被删除,账号将被禁止发言。
评论区