- 注册
- 登录
- 小程序
- APP
- 档案号
致逸设计 · 2021-02-25 14:02:17

大城雅境花园
南京.南部新城/ 2021.01
在建筑创作中,设计师不仅需要达到逻辑思维上的各要素的和谐,更需要非逻辑思维中的灵感与创造为设计增加独特的气质,同时关注空间与人之间的交互关系。大城雅境花园的设计立足于空间结构、材料和色彩的重组与调和,建筑与场所形成一种动态的和谐。
要说南京未来哪里最硬核
当属南部新城
项目位于南部新城核心区,毗邻大校场机场跑道,地段优越,融汇交通、教育、医疗等优质配套资源。同时机场跑道沿线也在有序推进南京博物院故宫馆、中国第二历史档案馆新馆、南部新城文化艺术中心等文化地标建设,为城市更新与发展建设奠定了扎实的基础。

△地理区位分析

△南部新城上位规划效果图
金地商置根植南部新城未来蓝图,打造总建筑面积达50万方的城市综合体,涵盖居住社区、酒店式公寓、购物中心及商务办公空间。作为南部新城核心区域的价值高地,大城雅境花园如何跳出示范区的套路化设计,将偏安一隅革新出繁景荣市的氛围,成为本案的核心命题。

△城市艺术馆效果图
具有张力的建筑空间
从来不是靠炫酷的造型

△最终形体关系示意
设计充分利用沿街的占地范围,将城市边界与沿街效应做到极致。我们通过建筑形体切分、体块的穿插增强城市街景的气氛,与其说是一个示范区,不如将其看作一个城市艺术馆,面向大众、直面所处的环境,用一种理性的现代城市美学构建新城地标。

△艺术馆鸟瞰实景
化整为零 虚实平衡
体量造型解析
我们在设计之初首要探讨如何将形态与功能关系自然融合,同时释放更多的场所空间,希望可以兼顾建筑美感与人文活力,促进人们的互动体验。

△体量生成过程
设计将功能盒子横向切分,通过体块切分、化零为整,首层架空回廊、二层局部悬挑铺垫漂浮感,形体的错动程度与结构骨架的支撑度相契合,最大限度地融汇建筑艺术性与学科严谨度。


△沿城市街道的艺术馆形象
收放有序 婉转情绪
空间动线规划
空间的布局基于功能所带来的体验互动与情绪变化而展开设计:从前场景观浸入第一进院落空间,我们围绕城市展厅的公共性,由外及内过渡城市与建筑的环境氛围。

△ 功能布局与流线分析


△从第一进院落望向品牌展厅
与城市展厅院落空间对比,第二进空间逐渐向内打开,同样是围绕庭院水景展开设计,格局更凸显延展性、人流动线更具丰富感。
两进院落通过回廊在物理空间层面的隔断,在表达介质上则巧妙选用了兼顾视觉美与通透性的金属丝网,“犹抱琵琶半遮面”,光影在其中斑驳错落。


△连接两进院落的回廊步道


如果说前序院落完成了空间的自如收放,那么工法展示馆与水院的关系则实现了情绪的进阶。游弋此处,观者会不由自主的发觉,从不同的视角看到的同一建筑呈现全然不同的空间感受,这其中也包含着建筑体量与比例关系的动态平衡。





△从滨水院落空间望向工法展示馆
除了空间场景构建
仍要坚持细节匠筑

序列演绎 克制美学
比例与模数化研究
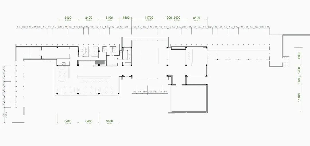
空间设计同样需要注重立体构成及线条的关系。由线到面,通过几何线条的介入将形体关系简化。外立面大部分采用2.1米宽的模数,与8.4米间距结构柱网对齐,在标注模数的序列演绎下,整个建筑成为一个不可分割而又和谐共生的空间场所。


△模数化应用示意图


研磨细节 精工匠艺
立面设计与材质细节
在对模数化的研究基础上,整座建筑最为完整的展示面主要以沿街城市街景为主,设计同样关注此立面的竖向尺度关系。

△竖向布局示意图

同时通过研究不同功能区域的层高适宜度,我们对不同质感的材料加以应用。石材、金属与玻璃的组合看似简约,却并不简单。

△材质搭配样板研究


△玻璃砖材质细节实景
少量玻璃砖点缀于核心空间,强化视觉焦点的独特之处
我们针对大理石材质的特性展开研究,由于材质本身易脆难割,因此在石材转角处采用直角拼接,断缝处理于非展示面。

△剖轴测分析图

在整体大面积灰白色石材的包裹之下,香槟色金属材质的少量点缀则显得格外亮眼。金属板折角造型不采用型材,而是用不锈钢板折边,更突显工艺的精致度。

△金属板折角细节研究

△金属材质的应用
与大量的石材对比搭配,形成视觉反差
自然的光给空间最真实的反馈,空气触摸建筑的形状,优雅的几何形状成为穿行在空间中的线索,空间与自然的质感变得触手可及。施工现场也随之变成了流动的光影记忆录。

△施工现场实录
点线面叠拼的几何空间



△ 共同讨论方案与施工现场合影


△室内实景照片,图片来源于易和设计



△景观实景照片,图片来源于伍道设计
主创设计师

汪蔚杰

朱煜
南京金地·大城雅境花园
项目业主:金地商置
项目地点:南京市秦淮区东风桥路与大明路交叉口
用地面积:80,086㎡
建筑面积:320,346㎡
建筑设计:致逸设计
建筑设计团队:汪蔚杰、朱煜、林振方、史于瑞、隋铭玉、方思计、陈文俊、陈鸿浩、王佩玉、钱越、刘赫、姜佳杰、郭炜达
施工图设计:南京市建筑设计研究院有限公司
景观设计:伍道国际
室内设计:易和设计
幕墙设计:浙江中南建设集团有限公司
泛光设计:碧谱|碧甫照明设计有限公司
建筑摄影:行知影像、三像摄、此间建筑摄影
特别声明
本文为自媒体、作者等档案号在建筑档案上传并发布,仅代表作者观点,不代表建筑档案的观点或立场,建筑档案仅提供信息发布平台。
19
好文章需要你的鼓励
参与评论
请回复有价值的信息,无意义的评论将很快被删除,账号将被禁止发言。
评论区