- 注册
- 登录
- 小程序
- APP
- 档案号
承构建筑 · 2021-05-13 10:14:19

场所印象
——走向历史文化深处的山水之城
记忆步道,街巷情怀
千里为重,广大为庆。重庆,一片有着三千年浓厚历史文化笔墨的热土,亦是巴蜀文化的发祥地。
几经易主的典型清代南方民居“谢家大院”就坐落于这样的一座城。中国传统民居建筑中,瓦房占据了重要地位,而重庆地区的瓦房普遍采用“飞檐”形式防雨。谢家大院的大飞檐,正体现了传统重庆瓦房民居的特色。

◎ 谢家大院
端庄稳重,出檐起翘
飞檐为中国建筑民族风格的重要表现之一,通过对檐部特殊处理,扩大了建筑的采光面,有利于建筑排泄雨水,也为屋顶增添了延伸向上的动感。建筑群中层层叠叠的飞檐,营造出中国古建筑特有的飞动轻快韵味。


本案以谢家大院的屋瓦和飞檐为灵感起源,将重庆丰富的民居文化研究和提炼,用现代设计手法从线条和体块出发,重新演绎传统民居特色。
项目概述
——巴江江水色,一带碧蓝浓
项目地块位于重庆市沙坪坝区大学城板块,重庆高新区、西部科学城的中心腹地,交通便捷,重庆市向西发展的核心区。大学城为重庆市科教文化区,重庆大学城位于沙坪坝区西部,融巴渝文化、沙磁文化、抗战文化、红岩文化于一炉。

◎ 区位分析
示范区的选址经过多处比较,最终落位在地块昭示性较好的东北角,迎合了城市主要人流方向,便于客户直接到达示范区;示范区与城市主干道平行布置,与道路联系更加密切,可为示范区导入人流,将展示效果发挥至最大化。

◎ 鸟瞰图
流线设计
——近者悦,远者来

◎ 示范区平面图
设计师将场地划分为接待前场、售楼处、景观后场和样板房四个基本功能区域。书卷形态的大门徐徐展开,错落有致的景观一一呈现,循着台阶漫步抵达接待前场,波光粼粼的镜面水景展现在眼前。



造型构思
——有故事的建筑
线条,是物体形成的载体,也是建筑的重要组成部分。简洁实用和非装饰性的几何体量是当前现代主义风格的基本准则,轻快明了,符合当下快节奏的生活环境。
构造上,竖向的建筑形态讲述了属于重庆的记忆和文化特征,简约流畅的线条勾勒出永恒的建筑。
设计师将建筑朝向选址路口交叉处的屋檐悬挑起翘,赋予一角飞檐概念,与重庆传统民居产生情感连结,也使得整体造型简洁明快 , 线条挺拔舒展。

瓦片元素应用于立面之中,晶莹的“亮瓦”层层递进,划上时间的刻度。

剔透的玻璃幕墙给予建筑与镜面水景虚实互动,给人以视觉上的延伸与层次感,增加了空间的连贯性。


一虚一实,穿插堆叠,将建筑形态一阶阶垒砌。

◎ 建筑主体演变过程

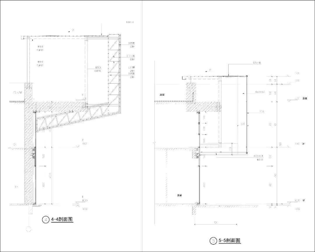
◎ 剖面图
二层幕墙利用参数化杆件,形成长短不一的“线条”,并延伸至挑檐底部的天花板,丰富第五立面。来往的访客从不同视角出发,都能感受到建筑立面蕴含情绪和故事。


◎ 效果图

◎ 实景图
建筑银灰色调的羽翼下透露着恰到好处的精致,细部的翼檐飞角不乏流动的曲线,以沉静的姿态展示优雅内敛的生活美学。

日落黄昏,点点星光,伴随玻璃幕墙模糊界限后建筑由内向外透露出的暖调光影,归家人们的心中也有了一丝慰藉。

细部控制
——精于细微,寓巧于拙
一个建筑的好坏,不仅取决于形体的构造,还重在材质的选择。
设计师在首层玻璃幕墙采用了通体纯净而又透明的蓝色镀膜玻璃,铝板表面喷涂亮银色氟碳漆,注入现代风格的金属质感。

铝板型材之间以半透明PC板相隔。PC板材质轻巧,在减少幕墙桁架结构的数量的同时,又保证了立面的洁净度,也节省了结构成本。

① 蓝色镀膜玻璃 ②银灰色铝板 ③白色半透明PC板

光影之间透露着结构上的纯粹,理性的线条韵律下是禹洲博学家以不动声色的设计美学,收纳着历史人文与自然的馈赠。


室内空间
——披星戴月,声色光影
透过一楼的玻璃幕墙,可见建筑内部的泛舟会客厅。会客厅亦秉承“博学家”的书卷气,营造出图书馆氛围;以多重灵动的弧线,呼应“书山”主题。实体样板间光源通达,场所气韵细腻典雅,人的感官情绪在此可得到自由释放。
湖光潋滟,水韵浮动,会客厅中灯光正暖,归家的幸福不言而喻。



结语
——探索未来新想象
本案从线条到空间,将重庆这座城市的文化气韵融入至几何形体之中,以简化建筑体量的手法塑造出简约、纯粹的建筑形式,表达传统与现代相生相衍的设计美学,探索着人们关于未来生活场景的新想象。

技术图纸

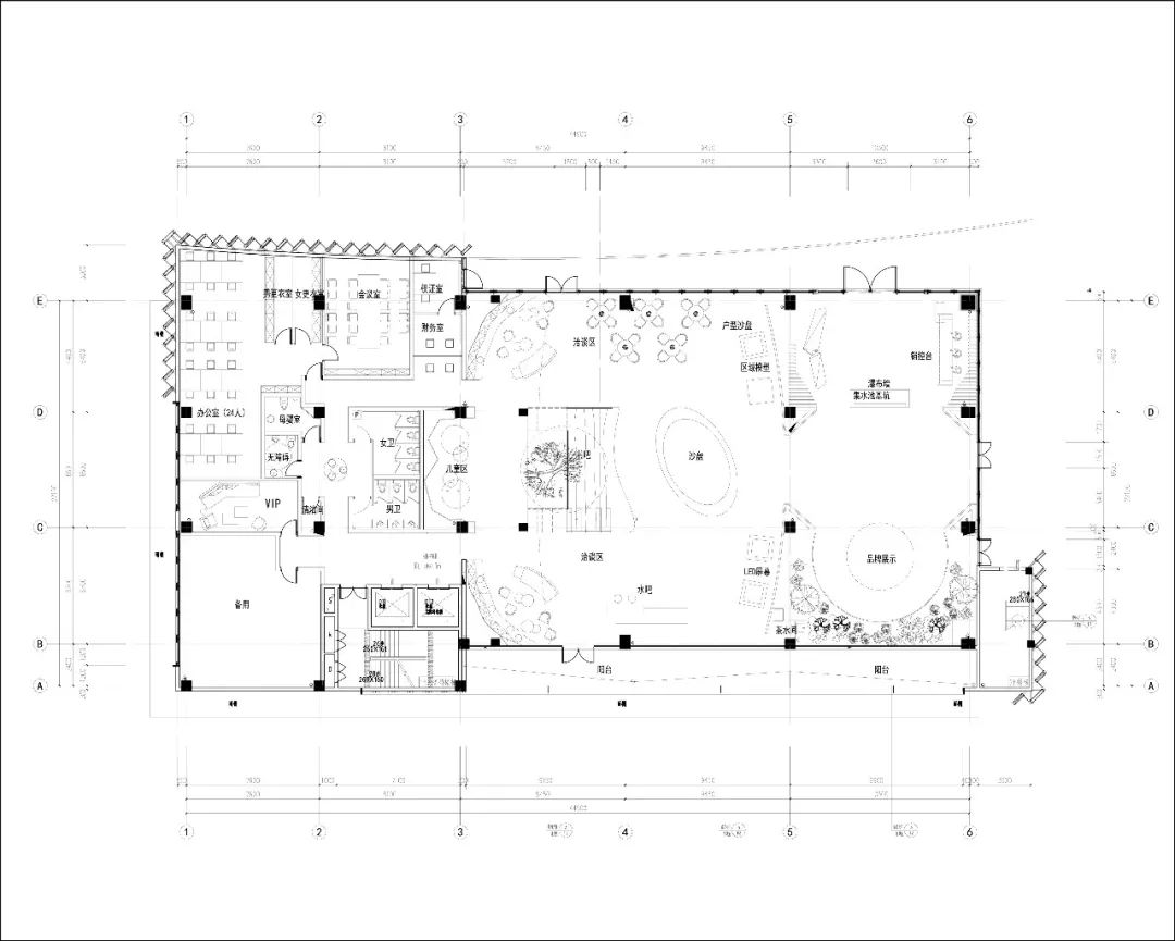
◎ 1F平面图

◎ 正立面

◎ 侧立面

◎ 墙体大样
项目主创

何运祥
深圳承构
合伙人设计总监

邓 卿
深圳承构
合伙人设计总监
项目档案
项目名称丨禹洲博学家
项目位置丨重庆绕城高速东侧
项目功能丨示范区
建设体量丨社区会客厅2707㎡+示范区用地6430㎡
业主单位丨禹洲地产
建筑设计丨承构建筑
设计指导丨柴晟,魏壮
设计主创丨何运祥 邓卿
设计团队丨郭华彬、宋嘉和、周雁、何锦飞、王鲲
施工图设计丨重庆市天开建筑设计事务所有限责任公司
景观设计丨广州山水比德设计股份有限公司
室内设计丨上海奥宣室内设计有限公司
幕墙设计丨重庆迪赛因建设工程设计有限公司
摄影机构丨此间建筑摄影-万勇波+映尺摄影工作室+李胜阳
撰文排版丨承构品牌部
注:部分图片文字源于网络,如有侵权请联系删除。
特别声明
本文为自媒体、作者等档案号在建筑档案上传并发布,仅代表作者观点,不代表建筑档案的观点或立场,建筑档案仅提供信息发布平台。
13
好文章需要你的鼓励
参与评论
请回复有价值的信息,无意义的评论将很快被删除,账号将被禁止发言。
评论区