- 注册
- 登录
- 小程序
- APP
- 档案号
DAGA大观建筑 · 2021-04-13 09:32:13

这是一个90年代风格的港式公寓住宅,位于北京二环内的核心商圈,车水马龙,喧嚣复杂。而在这里的家是需要宁静简单,像春风拂面温柔而润泽,像春雨般润物细无声。业主是一对金融圈的年轻夫妇,追求品质,热爱生活,热情好客,喜欢简约温馨的空间,对空间功能和收纳要求很高。
This is a 1990s-style Hong Kong-style apartment, located in the core business district of Beijing's Second Ring Road. And the home here needs to be quiet and simple, gentle and moist like the spring breeze, moisturizing everything silently like the spring rain. The owner is a young couple who pursue quality life and they are hospitable, like simple and warm lifestyle, and have high requirements for space function and storage.
▼温馨简约的角落 Warm and simple corner




我们摒弃掉不必要的装饰语言,不做过多的材料和颜色堆砌,为空间和时间解压,也为空间留有余地,营造了一种简单宁静、舒适惬意的氛围。
We abandon unnecessary decorative language, do not stack too many materials and colors, decompress space and time, and leave room for space, creating a simple, peaceful, comfortable and cozy atmosphere.
▼餐厅 Dining Room

▼餐客厅与窗外的风景 Living room and the view outside the window


客厅一整面的窗户是整个公寓最大的亮点,我们用柜子做成了一整面的窗台,使原本单一的采光窗变成了飘窗的形式。与窗外风景以及屋内的餐客厅形成了一个过渡和互动的空间,既满足了收纳功能也能让业主坐在飘窗台上欣赏窗外的美景。飘窗下的抽屉也是一个非常实用的储藏空间,可以收纳男女主人的100多双鞋。
The window on one side of the living room is the biggest highlight of the apartment. We made a window on the whole side with a cabinet, turning the original single daylighting window into the form of a bay window. It forms a transitional and interactive space with the scenery outside the window and the dining and living room inside the house, which not only satisfies the storage function but also allows the owner to sit on the bay window and enjoy the scenery outside the window. The drawer under the bay window is also a very practical storage space, which can store more than 100 pairs of shoes of the host and hostess.
▼厨房 Kitchen



女主人喜欢美食、烹饪,经常在周末和节假日邀请朋友在家里开party,因此我们在功能布局上把厨房和客餐厅多余的隔墙全部打掉,形成一个整体的大空间,使整个空间更加通透明亮,厨房采用可以推拉的玻璃隔断,让空间可分可合。女主人做饭之余还可以与家人朋友进行互动交流,厨房也不再是传统意义上的封闭而单一的“食物加工生产车间”。在向内的功能与对外的情感中找到了一种平衡,开放的空间使各个功能可以很好的共生,它们各自独立又相互融合。
The hostess likes food and cooking and often invites friends to have parties at home on weekends and holidays. Therefore, we have completely canceled the extra partition walls of the kitchen and guest dining room in the functional layout to form an overall large space, making the entire space more accessible. Transparent and bright, the kitchen uses glass partitions that can be moved, allowing the space to be divided and combined. The hostess can also interact with family and friends while cooking, and the kitchen is no longer a closed and single "food processing and production workshop" in the traditional sense. A balance is found between the function and the emotion. The open space allows each function to coexist very well. They are independent and integrated with each other.
▼卧室 Bedroom



同样的简约设计手法和语言贯穿到卧室空间。男女主人喜欢睡前躺在床上看电影,这是他们最为放松和幸福的时刻,投影便成了他们最好的伙伴。
The same minimalist design techniques and language are used in the bedroom space. The hostess and hostess like to watch movies in bed before going to bed. This is their most relaxed and happy moment, and the projection becomes their best companion.

生活从来都不是一蹴而就,空间也有生命,当柔软的光线散满房间,刺破空间的光与影充盈了叙事的空白,把夕阳揽入怀中,和红酒一起下肚。
Life is never achieved overnight, and space also has life. When the soft light fills the room, the light and shadow that pierce the space fill the narrative blank, embracing the setting sun and drinking red wine.
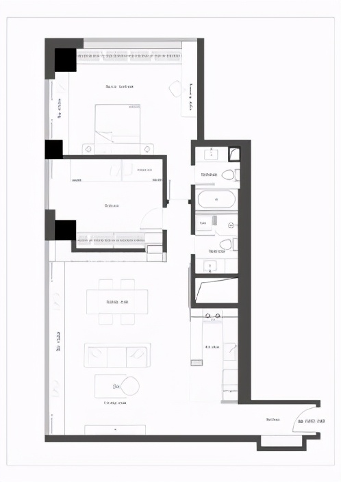
▼平面图 Plan


平面布置图
项目信息
项目名称:新世界公寓
设计公司:北京大观建筑设计
设计团队:申江海,李绍懿
项目类型:改造、室内设计
建筑面积:110㎡
设计时间:2020年3月
建造时间:2020年4月2020年11月
摄影师:UK Studio( www.uk-studio.net )
Project Information
Project Name: New World Apartment
Design Company: DAGA Architects
Design Team: Shen Jianghai, Li Shaoyi
Project Type: Interior Design
Covered Area: 110㎡
Date of Design: March 2020
Date of Construction: April-November, 2020
Photographer: UK Studio( www.uk-studio.net )
特别声明
本文为自媒体、作者等档案号在建筑档案上传并发布,仅代表作者观点,不代表建筑档案的观点或立场,建筑档案仅提供信息发布平台。
6
好文章需要你的鼓励
参与评论
请回复有价值的信息,无意义的评论将很快被删除,账号将被禁止发言。
评论区