- 注册
- 登录
- 小程序
- APP
- 档案号
深圳墨泰建筑设计与咨询有限公司 · 2021-03-18 10:04:04

实景图
林州建业百城天地
新中心 / 新天地 / 新生活
实
景
展
示



GIF

定
位
项目的定位为河南省林州市“小型城市综合体中心”。关注的是与业态相对应的形体,与文化相结合的空间,同时也能复制和炫酷。

实景图
探
索
我们对流线的建议是保持最简洁的动线系统,在横向约200M长的商业中心两端和中央分别打开空间,并将中央的节点通过垂直交通,形象设计,结合业态功能,成为整个项目的亮点。


设
计
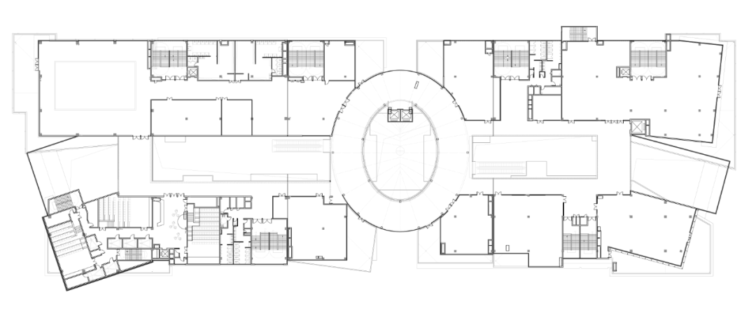
我们在项目的正中央打造了一个称之为“百城之冠”的节点。它作为一个HUB汇聚点将四方的人流和动线在第三层串在了一起,同时定义了一个聚集人气的广场,本身也能作为观景的平台。
我们将街道的尺度,当地的民俗和景观相结合,用民居符号与建筑的结合来给设计赋予人文意义。我们将河南传统街道尺度和生活广场内部街道尺度进行结合,创造一种具有文化内涵的街道尺度。

立面图

三层平面图

基
础
信
息
项目地点:中国河南林州
建筑面积:2.3 万平方米
设计时间:2016 年
建成时间:2019 年
合作设计:中外建工程设计与顾问有限公司深圳分公司
实景摄影:忍冬
特别声明
本文为自媒体、作者等档案号在建筑档案上传并发布,仅代表作者观点,不代表建筑档案的观点或立场,建筑档案仅提供信息发布平台。
7
好文章需要你的鼓励
参与评论
请回复有价值的信息,无意义的评论将很快被删除,账号将被禁止发言。
评论区