- 注册
- 登录
- 小程序
- APP
- 档案号
line+ · 2021-03-09 11:56:11

line+的办公空间自2018年1月搬入浙江工商大学老校区至今一直处于不断生长的过程中。办公空间不仅是工作的容器,更是交流的触媒。“冷峻又亲和”是空间的基调,“流动而开放”则对应的是未来多变的需求。

对line+来说,办公空间从不是一个一锤定音的完成品,而是一个拥有自我更新能力的有机体。2020年末恰逢事务所成立三周年,我们在一层的阶梯空间内又置入了展陈功能,对事务所成立以来的项目进行了回顾及展示,即“空间赋能:孟凡浩&朱培栋设计实践作品展 ”。


空间基础
这是一个典型的80年代小型报告厅,地面和顶面都呈阶梯状。拆除原有吊顶后,裸露出了混凝土斜梁和已不多见的预制板,和地面的灰色水磨石一样,这些都是上世纪的建筑符号。我们利用柱宽在空间的一侧设立了设备腔体,并在后部切割出储藏空间。繁复的设备管线都藏入其间,以保证空间的纯粹性,凸显出顶面和地面所保留的原始记忆。

△ 报告厅(改造前)
原始空间具有阶梯教室的标准平面,阶梯中部作为主入口,前部讲台一侧作为消防疏散口。功能调整为展厅后,使用人数骤减。我们将两个出入口定位对换,在保证展厅入口和公司主入口的一致性的同时,也保持展厅内界面的完整性。

△ 平面生成
在新定义的入口处,通过设立吧台模块形成玄关,将原本的整体空间分割为对外展示的橱窗和内部区域两部分,增加空间的层次感。


△ 设立吧台形成玄关空间
展陈设计
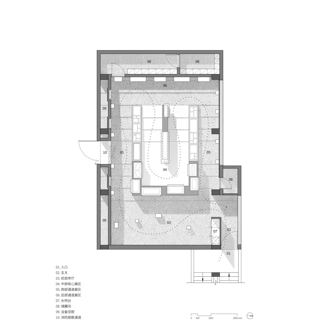
在仅有的120方的面积内,我们需要改变先前一览无余的空间状态。白色体块作为一个整体装置在空间中心落座,成为视觉核心。展厅空间由此分隔为前部序厅、中部核心展区及侧后部通道展区三个部分。

△ 功能分析

△ 流线分析


△ 前部序厅
设计将白色体块切分为相互嵌套的C+1两个带状形体,从而形成了一条拉长的流线。展品以透明盒子的形式嵌入其间,延续建筑外立面的设计手法。透明盒子在内外界面上错动排布,最大化利用展陈墙体。盒子以亚克力为材料,采用原始的移动安装方式,控制造价和施工难度的同时,方便后期的展品更新。

△ 体块生成

△ 透明盒子以空间利用最大化为原则嵌入展陈墙体



白色体块的高度设置需同时考虑不同类型建筑模型所对应的观看模式以及原始阶梯的高差变化。在前部和后部分别采用墙面展示和台面展示两种不同的方式,以同时保证序厅区域所需的围合独立性和中部展区的通透流动性。台面高度在不同的停留位置上形成的750mm和1050mm的桌面高度则正好对应台面摆放和嵌入式的不同观看方式。



△ 墙面及台面展示对地面高差的应对
除去透明的亚克力,白色是唯一引入空间的颜色。通过对材料种类和颜色的控制,新建的装置和留存的基础相互映衬。所有墙面均使用白色乳胶漆,利于丝网印刷及后期调整。白色体块的地面采用预制成品白色水磨石,和墙面形成整体。

△ 橱窗展示节点

展览
序厅由分布着展览导言、投影展示及项目索引的三个完整墙面围合而成,较为开敞的空间可供人们驻足停留。

△ 展览平面图

△ 序厅空间
三个长宽高各异的白色长方体错落布置,在序厅内自然形成动线。长方体不同的大小及高度对应展览折页、明信片及书籍的摆放尺寸及使用方式。除了分散摆放,三个白色体块也可以形成一组整体,对内容进行集中展示。

△ 展台细节
索引墙面将此次参展作品梳理为四大实践场景。通过设计特点的提取,项目以不同灰度组合成的LOGO形式出现。各个作品的LOGO最终形成的矩阵展示出事务所的实践广度。


△ 索引墙面部分项目LOGO
飞蔦集模型今年将参加威尼斯双年展军械库主题展,在此次回顾展中作为展出项目的起点,和项目索引并置。其模型展示出项目材料与工艺的策略和对乡村传统建造的价值的挖掘,以体现激发怀乡之情、致力于恢复村民与村落记忆的设计主旨。

△ 飞蔦集模型作为项目起点
两侧的通道展区分别对应此次展览中的“自然场域中的在地营造”和“区域尺度下的有机发展”两个实践场景,“鱼香茶舍”、“泰安东西门村活化更新”等项目以小模型、中型屏幕及图文组成的构成关系呈现,在连续完整的墙面上形成富有变化的节奏感;“九女峰书房”通过局部结构及剖面模型,将项目在高传播力视觉形象、大范围影响力及激活媒介属性背后的技术层面的思考进行了展示。

△ 通道展区-墙面项目组织方式

△ 通道展区-自然场域中的在地营造
中部展区则对“城市空间中的边界重构”和“高密度类型的机遇挖掘”内的项目进行了重点展示。类型不同的建筑模型成为展示重点,搭配以内嵌的小屏幕以及重点图文。“钱塘江博物馆”通过剖面模型来表达该项目中“全时段公共空间”的类型创新,体现出line+对如何打破城市公共和私有之间的固有界限,创造出更富流动性和开放性公共空间的思考。



“中节能上海总部”则在小屏幕内将整个设计思考过程以视频形式呈现,展现出该项目借力自然形式、对多维度连接与贯通的营造。
中部墙体的水平开口使得观展人和模型、观展人之间产生互动,让视线穿透的同时形成有趣的框景。开口内展示的是杭州灵隐寺西线地块概念方案(国际竞赛)项目,大尺度的整体剖面模型将场地、功能等种种限定条件、设计对现代寺庙真实的空间诉求的满足以及对千年古刹的自然回应做了整体展示,最终打造出生态、开放、公共、科技智慧型的现代寺庙文化中心。



△ 中部展区-视线的流通和营造的框景
项目的材料和节点图纸被巧妙地结合在透明盒子内,从不同尺度和思考层面上展示出设计过程中的思考。


△ 真实材料和节点图的结合
后部的模型墙面通过悬挑的白色金属板承载着不同阶段的项目工作模型,成为这个展览的背景的同时,自然地展示出事务所的项目全景。


结语
建筑模型作为真实空间的微缩最终通过大小不一的透明立方体呈现,透明立方体则错落融入纯净的白色体块,最终被富有岁月记忆的灰色空间所包裹。从空间进入装置最终观看建筑模型,犹如拆开层层包裹,获得最终的礼物。这些代表着line+在不同维度建筑实践的模型,将会伴随事务所的发展不断给观展者带来新的惊喜。


项目名称:“空间赋能”作品展空间展陈设计
项目地点:杭州,浙江
设计时间:2020.06-2020.12
改造面积:120㎡
设计总监:孟凡浩、朱培栋
空间设计:祝骏、张思思
视觉设计:方怡、叶莉莎、刘欣慧、奚燕纹、付钰
学术顾问:李翔宁、莫万莉、高长军、黄钰婷
展览插图:李三见、徐天驹、杜梦颖、盛逸涵、叶子
摄影:潘杰
特别声明
本文为自媒体、作者等档案号在建筑档案上传并发布,仅代表作者观点,不代表建筑档案的观点或立场,建筑档案仅提供信息发布平台。
12
好文章需要你的鼓励
参与评论
请回复有价值的信息,无意义的评论将很快被删除,账号将被禁止发言。
评论区