- 注册
- 登录
- 小程序
- APP
- 档案号
DAGA大观建筑 · 2021-03-01 14:32:06

小枝️@ICYWORKS
昆明大悦城优客工场是大观在昆明做的第二个项目,地处昆明千年商脉——老螺狮湾,依昆明母亲河盘龙江畔而建造,占据昆明市一环及多条城市主干道。优客工场位于大悦城的十一、十二层空间。由大观与优客工场团队紧密合作,通过分析昆明当地特色,探索和营造符合现代文化环境和办公方式的多元工作空间。
Kunming Joy City Ucommuneis the second project done by DAGA Architects in Kunming. It is located inKunming's traditional commercial district- Laoluoshi Bay and is built on thebank of the Kunming's mother river Panlong River, occupying one or moresections of Kunming City. Ucommune is located on the eleventh and twelfthfloors of Joy City. DAGA works closely with the Ucommune team to explore andcreate a diversified workspace in line with the modern cultural environment andoffice style by analyzing the local characteristics of Kunming.
地域特质|Regional characteristics
▼竹材与现代材料的结合,Combination of bamboo andmodern materials

小枝️@IC YWORKS

小枝️@ICYWORKS
在昆明乃至整个云南地区,都有着很鲜明的民族、地域、文化特征,而且都保存的比较完好。云南之所以保留着独特的地域氛围,正是因为它没有在城市化的浪潮中被时代背景所吞没。在城市中,从来不缺少现代化的建筑,但是在千变一律的发展过程中,都在逐渐的趋同,城市空间需要体现地域性,不仅仅是对传统、文化的一种保护,也是一种城市发展多元化的体现。
In Kunming and even the whole Yunnan region, there arevery distinct ethnic, regional and cultural characteristics, and they are allwell preserved. The reason why Yunnan retains its unique regional atmosphere isthat it is not been changed by the background of urbanization. In the city,there is never a lack of modern buildings, but in the process of uniformdevelopment, they are gradually converging. Urban space needs to reflect theregionality, not only a kind of protection of tradition and culture but also anembodiment of the diversification of urban development.
▼办公区域中庭置入竹材结构,其他空间环绕布局,A woodenstructure is placed in the atrium of the office area, and other spaces aresurrounded by the layout.

小 枝️@ICYWORKS

小枝️@ICYWORKS
云南特有的自然条件,在这里形成了许多极具特色的梯田与竹楼,附近的村落分布在梯田四周,形成一种聚合式的布局。我们将这些元素与联合办公中现代社区的功能结合,形成了一个围绕着中间共享空间布局,四周有各种功能环绕的基于地域性的空间布局模式。同时,联合办公的功能也营造了一种社区化的办公模式,打破了传统写字楼对人造成的消极固化的影响。
The unique natural conditions of Yunnan have formedmany unique terraces and bamboo buildings here, and nearby villages aredistributed around the terraces, forming an aggregated layout. We combine theseelements with the functions of the modern community in the co-working office toform a regional-based spatial layout pattern around the middle shared space andsurrounded by various functions. At the same time, the function of co-workingalso creates a community-based office mode, breaking the negative impact oftraditional office buildings on people.
空中竹楼|Bambootower in the sky
▼中庭区域剖面图,Section of atrium area

▼空中竹楼,Bamboo tower in the sky

项目位于整幢大楼的最顶层,我们将这两层以及屋顶作为一个整体来设计,并且在最中心植入一个空中的竹楼,在建筑中营造出一个巨大的围合空间,消解了建筑中矩形柱网的均质感。竹楼是云南地区傣家的标志民居,我们将此元素在公共区域延伸,结合地域性的材料,让整个设计能够为人们传达出城市的个性与特征。
The project is located on the top floor of the wholebuilding. We designed these two floors and the roof as a whole, and planted asky bamboo building in the center, creating a huge enclosed space in thebuilding and eliminating the building. The uniform texture of the rectangularcolumn net. The bamboo tower is a symbolic residential house of the Dai familyin Yunnan. We extended this element in the public area, combined with regionalmaterials, so that the entire design can convey the personality andcharacteristics of the city to the people.
▼悬浮于两层之间的圆形竹楼,Circular bamboo towersuspended between two floors

小枝️@ICYWORKS
云南省的天然竹林面积有380万亩,竹林类型共有 30 多种,天然竹林类型及面积居全国第一位,是我国乃至世界公认的竹类来源大省。竹子作为一种建筑材料,已经在许多地域建筑中运用,竹材质的柔性与刚性性质也给空间提供了更多的可能性。
The area of natural bamboo forest in Yunnan Provinceis 3.8 million mu, and there are more than 30 types of bamboo forest. the typeand area of natural bamboo forest ranks first in the country, and it isrecognized as a major bamboo source province in China and even in the world.
As a kind of building material, bamboo has been usedin many regional buildings, and the flexible and rigid nature of bamboomaterial also provides more possibilities for space.
▼中庭竹筒结构分析(gif),Analysis of additional structure of atrium


▼竹结构构件细节,Details of bamboo structural

小枝️@ICYWORKS
设计并未从某一风格入手,而是结合场地文脉,建筑视野,交通动线,建筑结构以及建筑立面等因素,以规划的方式将各个空间模块放置到合适的位置,自外而内的反向推导,发现空间问题并通过设计手法解决问题。这种反推方式不仅让室内与建筑本身严丝合缝,让建筑布局充满逻辑化,也更让室内空间丰富多变。
The design does not start with a certain style butcombines the factors such as site information, architectural vision, trafficcirculation, building structure, and building facade to put each space modulein the right position in the way of planning and reverse derivation from theoutside to the inside, to discover the space problem and solve the problemthrough the design technique. This reverse method not only makes the interiorand the building itself close together, so that the architectural layout isfull of logic, but also enriches the interior space.
空间形态|Spatial form
▼空间布局分析,Spatial layout analysis

空间形态来源于云南本地竹楼结构及梯田形态,通过竹制材料的介入并融合云南传统竹编工艺强化本地特色。 竹材的柔性,使得建筑内部空间的灵活性更强,整个色彩也使得室内更加柔和、舒适,营造了良好的办公与休闲环境。
The spatial form comes from the local bamboo buildingstructure and terrace field form in Yunnan, which strengthens the localcharacteristics through the intervention of bamboo materials and theintegration of Yunnan traditional bamboo weaving technology. The flexibility ofbamboo makes the interior space of the building more flexible, and the wholecolor also makes the interior softer and comfortable, creating a comfortableoffice environment.
▼会议室,Meeting area

小枝️@ICYWORKS

小枝️@ICYWORKS
▼路演厅,Road show area

@田涛
空间布局围绕中庭路演区展开,将共享功能模块布置在建筑几何中心使得空间配比相对均衡。通过增设联通各层和屋顶花园的楼梯,打破各层界限,增强空间的关联性。采光天窗增加了阳光的射入,使得进深过大的室内每个角落都可以有自然光,给办公者营造了良好的氛围。
The spatial layout is carried out around the atriumroad performance area, and the shared function modules are arranged in thecenter of the building geometry to make the space ratio relatively balanced.Through the addition of stairs connecting each floor and the roof garden, theboundaries of each floor are broken and the relevance of the space is enhanced.The daylight skylight increases the exposure of sunlight so that there can benatural light in every corner of the room, creating a good atmosphere foroffice workers.
▼中庭空间,Atrium space

小枝️@ICYWORKS
中庭设置具有围合感的静音图书办公空间,会让人联想到大学的图书馆自习室。配合舒适的休闲办公家具,整个区域充满自然光以及木材的柔和,亮度与色温均适合长时间办公或阅读。让这里不是消磨时间的传统办公空间,而是可以强化个人价值的空间,这也是联合办公有别与传统办公更加吸引人的关键。
The establishment of a mute book office space with asense of encirclement in the atrium is reminiscent of the self-study room ofthe university library. With comfortable leisure office furniture, the wholearea is full of natural light and softwood, brightness and color temperatureare suitable for long hours of office or reading. So that this is not atraditional office space to kill time, but a space that can enhance personalvalue, which is also the key to the difference between joint office and traditionaloffice.
▼通向屋顶的楼梯,A staircase leading to theroof

小 枝️@ICYWORKS
▼走廊,Corridor

小枝️@ICYWORKS
▼公共休息区,Public rest area

小枝️@ICYWORKS
▼展示区,Exhibition area

小枝️@ICYWORKS

小枝️@ICYWORKS
▼电话间,Phone room

小枝️@ICYWORKS
▼天窗,Skylight

小枝️@ICYWORKS
▼家具细节,Furniture details

小枝️@ICYWORKS

小枝️@ICYWORKS
▼施工现场,Construction Site

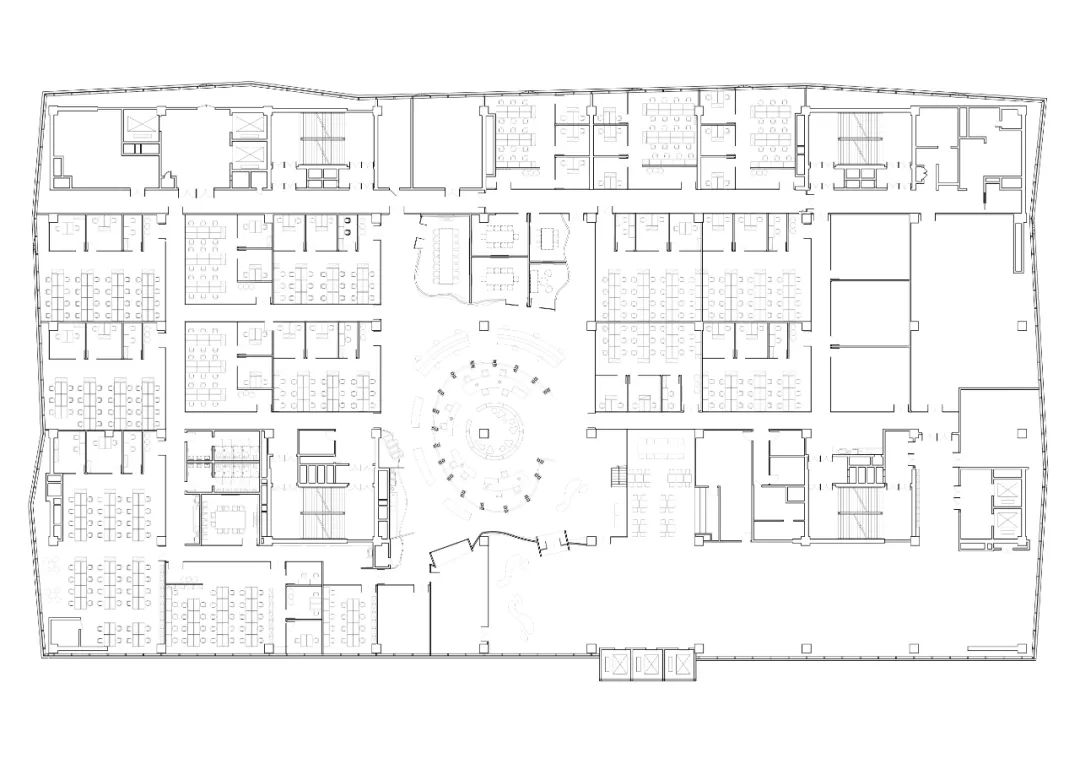
▼十一层平面 F11 plan

▼十二层平面 F12 plan

▼剖面图 Section

项目信息
项目名称:昆明大悦城优客工场
设计公司:DAGA Architects大观建筑设计+优客工场
设计团队:申江海 刘宇哲 黄达 刘昂 刘晓青 邹念龙 黄冶平
软装设计:余小雨 张志婷
项目类型:室内设计与改造
建筑面积:约8000㎡
设计时间:2019年
建造时间:2019年4月-2019年10月
摄影师:小枝️@ICYWORKS,田涛
Project Information
Project name: Kunming Joy-City Ucommune
Design company: DAGA Architects+Ucommune
Design team: Shen Jianghai,Liu Yuzhe, Huang Da, Liu Ang, Liu Xiaoqing,Zou Nianlong,Huang Yeping
Soft loading design: Yu Xiaoyu, Zhang Zhiting
Project type: Interior design & renovation
Covered area: about 8000㎡
Date of design: 2019
Date of construction: April-October 2019
Photographer: Rami@ICYWORKS, Tian Tao
特别声明
本文为自媒体、作者等档案号在建筑档案上传并发布,仅代表作者观点,不代表建筑档案的观点或立场,建筑档案仅提供信息发布平台。
13
好文章需要你的鼓励
参与评论
请回复有价值的信息,无意义的评论将很快被删除,账号将被禁止发言。
评论区