- 注册
- 登录
- 小程序
- APP
- 档案号
日比野设计 · 2021-01-27 14:35:25
小滨幼儿园
ᴏʙ ᴋɪɴᴅᴇʀɢᴀʀᴛᴇɴ ᴀɴᴅ ɴᴜʀsᴇʀʏ
日本 长崎县
荣获奖项
日本 第9届 KIDS DESIGN AWARD & 奖励作品
日本 2015年度 GOOD DESIGN AWARD
美国 2016 The A+Awards Kindergarten Finalist
(幼儿园部门优胜奖)
中国 The IAI Design AWARD 2016 Best Excellence Award
日本 九州建筑选集2015年度奖励作品
刊登媒体
Architizer(美国)
Archdaily(美国)
ARQA(阿根廷)
designboom(意大利)



OB 幼儿园
里亚型海岸
层层山峰
项目为沿海岸区域,南边能看到沉稳、广阔的大海,背面是层峦叠嶂的山峰。幼儿园被大自然包裹在其中,拥有得天独厚的地域优势。
“面朝大海,从日常中感受家乡土地的气息。”
成为了OB园舍的设计理念。

建筑外立面-正面
项目用地原始标高差12m,幼儿园改造时尤其利用了这一点,注重孩子们之间交流的氛围和视线汇聚点,配合家长接送、保育等方面,对建筑整体的动线进行了深入的考量。
运动
01运动融入生活、游戏
艺术
02从空间环境培育感性认知
饮食
03开放型餐厅
图纸
04部分图纸公开
01
运动融入生活、游戏
为了促进孩子们多种多样的身体运动,室内的每一个角落都经过精心设计,让孩子们在生活中、游戏中自然地、非刻意的活动身体,达到运动锻炼的目的。

绘本区、游戏区
墙内埋入的“小房子”
吸引孩子们的注意
想要钻进去一探究竟的好奇心
绘本区配合柔和的间接照明
营造温暖的阅读、游戏空间
绘本与黑板墙结合
学习与创造的融合


绘本区
多个地方设置了阶梯
孩子们为了到达每一个功能区
都需要“翻山越岭”
【楼梯】一直是日比野设计的重要元素之一
【楼梯】能实现身体上的运动
【楼梯】能实现“有一点危险”
【楼梯】也是阅读学习的场所
小朋友们可以根据自己的想法
去休息、游戏、挑战······

室内游戏区
孩子们的秘密空间
有时候需要躲开大人
和小伙伴一起到秘密空间里探索游戏
小小的窗户能隐藏自己的身体
又能偷偷地观察外面的事物
为了自然地转换心情
在室内也表达出不同的情绪
室内多个地方使用了不同的地板材料
孩子们能踩着地板
去到不同感受的地方
回 旋 性 动 线





02
从空间环境培育感性认知
艺术教室、绘画室、音乐教室、手工教室等等都是培养孩子感性的场所,“感性、感知”是该类教室的关键词和要素,设计时需要更注重到孩子们敏感、跳跃的思维模式。

通透的大玻璃有两个作用
①引导孩子学会观察
窗外的场景随时在变化
可能是其他小朋友跑过去
可能是大人路过
避开了全封闭的空间
通过小小的透明窗
能清晰观察到外面更广阔的世界
②引导注意力集中
大多数人传统的理念里
只有【封闭】的空间才能集中注意力
封闭的空间能达到安静、隔断的效果
但是
【开放】的空间才是真正培育注意力的场所
因为没有绝对的安静、绝对的封闭
让孩子们从小在开放型的空间里学习
学习专注于手上的工作
不被周围的事物所打扰
才是真正的集中力养成
03
开放型餐厅
建筑正面是一个大开放式餐厅,打开阳台的门后室内室外连为一体,有专属于的餐厅阳台,门外面朝当地的大海,设计营造出“海上幼儿园”的氛围。开放性的空间不仅能实现舒适的用餐环境,孩子专用的餐台是自主配餐、饮食文化等的学习场所,同时方便当地居民、家长利用,加强互相之间的交流与联系。

餐厅是日比野设计室内空间最重要的一环
餐厅是生活的场所
风和日丽的天气里可以坐到室外
在家乡的大海旁享用美食
盘中的食物会更加美味
餐厅是学习的场所
自己按量取食
观察厨房的烹饪过程
激发对食物的兴趣
学习饮食相关的文化与知识
餐厅是交流的场所
独生子较多的社会下大多数孩子社会性较低
当“大”孩子与“小”孩子坐在一块儿时
“大”孩子照顾小孩子
“小”孩子模仿憧憬的大孩子
增进相互之间的交流

室内室外无高差相连
简单的设计外观下是对每一个细节的专研与精细处理。

餐厅四周皆为通风环境
整体注意避开封闭性空间,良好的光线与通风为孩子们带来最为舒适的环境。

透明的厨房与儿童专用餐台
厨房是培养孩子们好奇心与学习的存在。
04
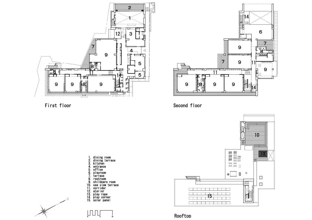
部分图纸公开



特别声明
本文为自媒体、作者等档案号在建筑档案上传并发布,仅代表作者观点,不代表建筑档案的观点或立场,建筑档案仅提供信息发布平台。
14
好文章需要你的鼓励
参与评论
请回复有价值的信息,无意义的评论将很快被删除,账号将被禁止发言。
评论区