- 注册
- 登录
- 小程序
- APP
- 档案号
建筑美学 · 2020-09-27 09:25:35

▲明 董其昌《渔村夕照》
排港村位于海南琼海市潭门镇一个入海口的老村旧宅,宅子保留着极具海南本土气息的韵味。老村周围除了大片的原始椰树林外,还有沙滩和海浪以及来往渔港的船只等。
融创集团从2015年进驻海南,于2018年深耕文旅产业。企业秉承着“服务社会,保护传统文化,协助百姓安居乐业。”的社会责任感,对排港村进行修复性的改造。作为第一期文化旅游样板工程项目,在当地文化与现代生活之间进行了一次文化的探索。第一期规划涵盖有酒吧、会客厅、艺术家展览馆以及5#、6#、7#院三个合院进行了深入的设计。






排港村酒吧
排港村酒吧所处这期规划项目的核心位置 ,正前方与海港相接连,与海边相邻为一个宽敞的广场。广场北侧为天然的原始椰林,椰林往下走便是会客厅以及绵延开来的古村群落。酒吧与会客厅之间有一条村道,接着走下去就是此次改造的精品民宿5#、6#、7#院建筑是按照旧村落的韵律经营位置的,因地制宜地保留原有民居与现代建筑的风貌,在新与旧的氛围之间,营造错落有致之感。







由于酒吧处于核心位置,前后左右均与环境有着不同的对景关系。虽设立围墙,却主要以营造区域为主。建筑师汲取当地耕海文化的灵感,大面积的采用了当地的石灰岩材料为外墙装饰,石灰岩的粗犷感与实木竖条的细致感、形成了视觉上的反差,再与室内更细腻的白墙进行对比,则视觉更为震撼。
2018年随董豫赣老师到日本参观传统庭院诗仙堂时。老师有专门讨论日本传统空间,虽然看似全部串连在一起,但是,由于空间上方的长押,导致空间中身体感知的区域性与分隔性,让我意识到中国传统木构筑,也有同样的作用。不过要注意空间的比例,以及(长押)横深的尺度。通常会因为过度追求形式高大,而显得体感不足,本案酒吧室内属于一个简单的矩形空间,空间极易乏陈, 设计上结合中国传统木筑造的关系,并有压低横梁的设计,再配竖隔屏以试图让空间的形制与身体的感知产生关联 ,让身体在空间中变得迷离而暧昧。
胡中维
写于不空山房


“船舶酒吧”——由一本被称为“南海天书”的《更路簿》开始,将浩瀚的南海、有着厚重历史的潭门浓缩其中,南海的风,吹动了无数船帆,吹绿了千年渔港,吹遍了一个又一个渔村的梦。酒吧台是整个空间中尤为重要的设计,本案将渔船造型与吧台功能结合,一个巨大的渔船横立在空间中央。酒吧台后方的墙壁上运用了特殊灯具的光斑效果与传统榫卯结构的独特渔船挂饰相结合,伴随着光影律动变化,宛如船在波光粼粼的海面上航行。



休闲区沙发位融入编织的元素,与木栅格隔断相呼应,家具粗狂的石材与细腻的软包碰撞出古朴安静的感觉,做旧木制单品以及火炉装置的点缀更显渔乡渔民的生活气息。



卡座区位于酒吧空间最里的位置,墙面的芦苇装置内设灯光,打造出芦苇似动非动的摇曳感,卡其色软包与粗麻编制的纹案形成强烈的反差感,体现出小渔村的古朴安静的氛围。

▲鸟瞰图

▲酒吧平面图 | 244m²
排港村会客厅
会客厅旨在呈现一个正式却不冷淡,清新不失庄重的会客厅。材质上以实木为主,色彩上皆用平和的颜色,让视觉感官更加细腻柔和。庄重有力的沙发形态搭配波浪曲线的扶手,让庄重的形式多一丝活泼。



▲鸟瞰图

▲会客厅平面图 | 280m²
排港村5#院
次北固山下
唐·王湾
客路青山下,行舟绿水前。
潮平两岸阔,风正一帆悬。
海日生残夜,江春入旧年。
乡书何处达,归雁洛阳边。
王湾的《次北固山下》“潮平两岸阔,风正一帆悬。”引入主题,融合当地耕海文化,打造的室内空间。



民宿以营造家的温馨氛围为主,家具以素雅纯净的色调和简单明朗的线条铺陈,结合艺术作品,营造一种具有东方与现代相融而生的温柔但有力的气质。选用了部分藤席饰面的家具款式,体现当地手工编织的艺术。

画作的主题以提炼当地的渔网元素与船帆元素进行抽象化表达,选用了日本艺术家高畠依子Yoriko Takabatake的作品,作品表面的肌理如渔网与船帆交织在一起的艺术效果,既能与空间相呼应也能与当地文化结合。





色彩上,温柔舒适的茶白色遇上庄肃的炭黑色,刚与柔的结合,黑与白的交错,胭脂色游走在其中,碰撞出宁静悠扬舒适的环境。


在院子里感受诗意栖居的自然。听窗外风吹过树枝的声,闻着飘香的淡花香,看沿墙的篱笆生长。



▲鸟瞰图

▲5#院平面图 | 121m²
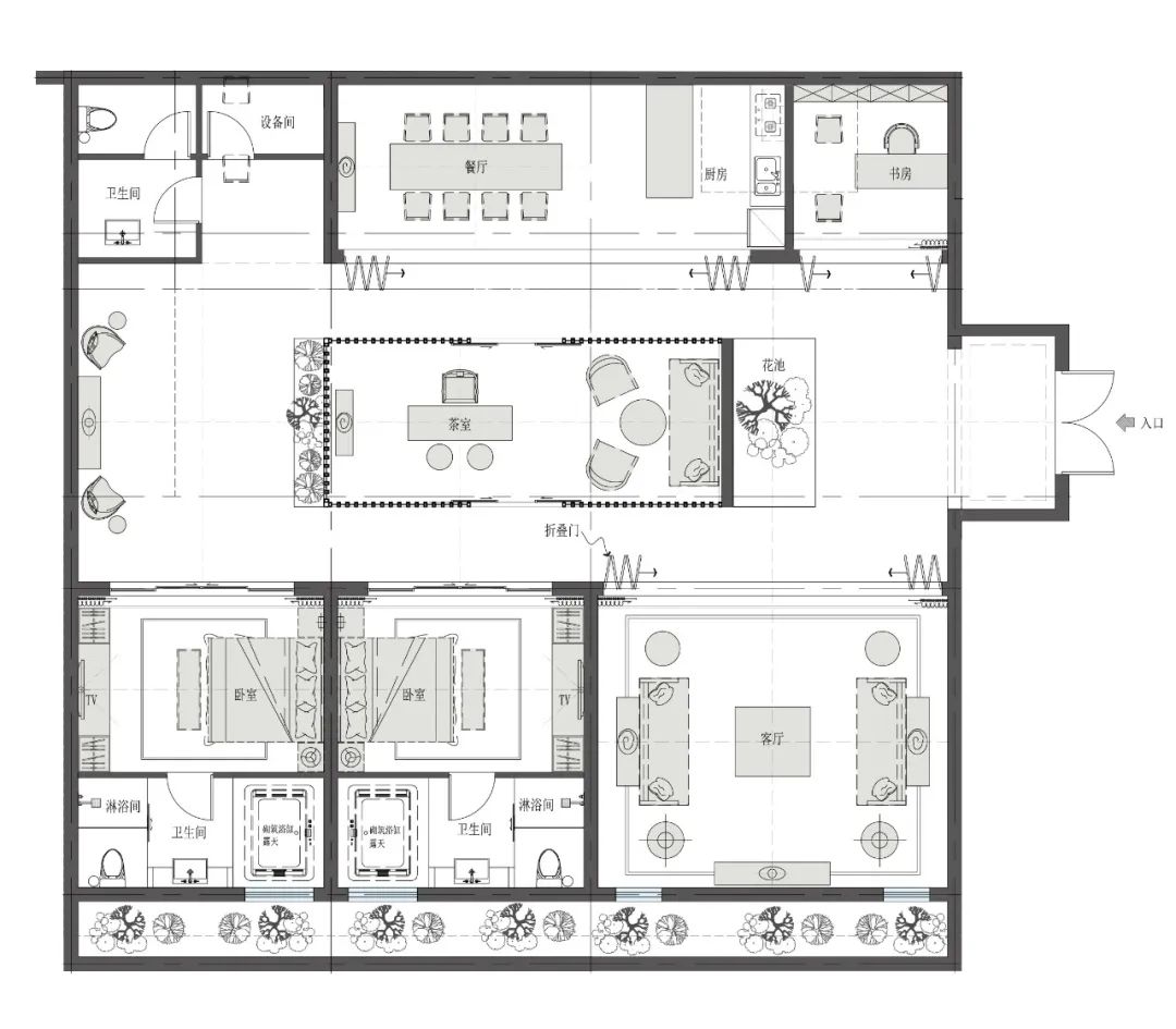
排港村6#院
“人莫乐于闲,非无所事事之谓也,闲则能读书,闲则能游名胜,闲则能交益友,闲则能饮酒,闲则能著书,天下之乐,孰大于是?” —— 《幽梦影》




空间以舒适、典雅及朴实的度假风表达,同时加入当地文化加以延伸,使空间更显在地性。色调以高贵典雅的枝黄色与静谧深沉的木色结合,如同在空间中探秘一般,层层递进,探索感与兴奋感油然而生。


每个卧室都带有其独立的景观,与外面自然环境相呼应。



家具以朴实的实木色与庄严的深色皮为主,穿插着金属的灯具,表现出低调的奢华感。


▲鸟瞰图

▲6#院平面图 | 150m²
排港村7#院
《秋 词》
唐· 刘禹锡
自古逢秋悲寂寥,我言秋日胜春朝。
晴空一鹤排云上,便引诗情到碧霄。
本案以候鸟作为主题,用刘禹锡的《秋词》“晴空一鹤排云上,便引诗情到碧霄”展开序幕。空间以诗意化境运用至其中,自然的气息弥漫空间,旨在营造一个以人为本,以鸟与自然为载体的民宿空间。








客厅选用具有柔和弧度的家具,模拟候鸟的姿态,营造自然的美感,挂画也选用盛昌年的《柳燕图》围绕主题,旁边的茶室以及餐厅也都选用平静舒服的色调,其中灯家具形态也以“候鸟南飞”、海上礁石为灵感,在空间的饰品选择上秉承着少精于多的理念,多选用自然质感的器皿饰品等,让整个空间显得精致却不世俗,自然气息也更加浓厚。

空间将自然而生的形态融入其中,让空间不再只是一个特定的名词,而是成为一间真正与自然融合,与生灵交融的民宿;在方案上我们大量运用柔和安静的暖白色系和清新恬淡的原木色系,没有多余的跳色,让整个民宿空间显得更加干净平和。


闲暇午后,倚靠在单椅上感受徐徐海风的海南,一番惬意风情。在这里,希望通过一方民舍感受自然的气息,拥抱自然。






▲鸟瞰图

▲7#院平面图 | 229m²
项目名称:融创海南谭门镇排港村
项目地点:海南省
项目面积:1024㎡
完工时间:2019年12月
硬装设计:胡中维室内建筑设计
软装设计:胡中维室内建筑设计
软装执行:胡中维室内建筑设计
灯光设计:深圳市明亮照明有限公司
项目摄影:大斌摄影
特别声明
本文为自媒体、作者等档案号在建筑档案上传并发布,仅代表作者观点,不代表建筑档案的观点或立场,建筑档案仅提供信息发布平台。
19
好文章需要你的鼓励
参与评论
请回复有价值的信息,无意义的评论将很快被删除,账号将被禁止发言。
评论区