- 注册
- 登录
- 小程序
- APP
- 档案号
建筑美学 · 2020-09-27 09:21:26

▲流动新闻报道页面
自新型冠状病毒出现以来,世界卫生组织(WHO)成为舆论的焦点。实际上,WHO在协调和领导全球重大抗疫工作已不是第一次。当上世纪80年代美国发现艾滋病,在90年代初艾滋病肆虐全球,各国束手无策之时,WHO在日内瓦建立了艾滋病防御中 心。中心云集了各国的专家和卫生管理人员,为全球艾滋病的防治,做出了巨大贡献。

▲建筑整体外观

▲区位图

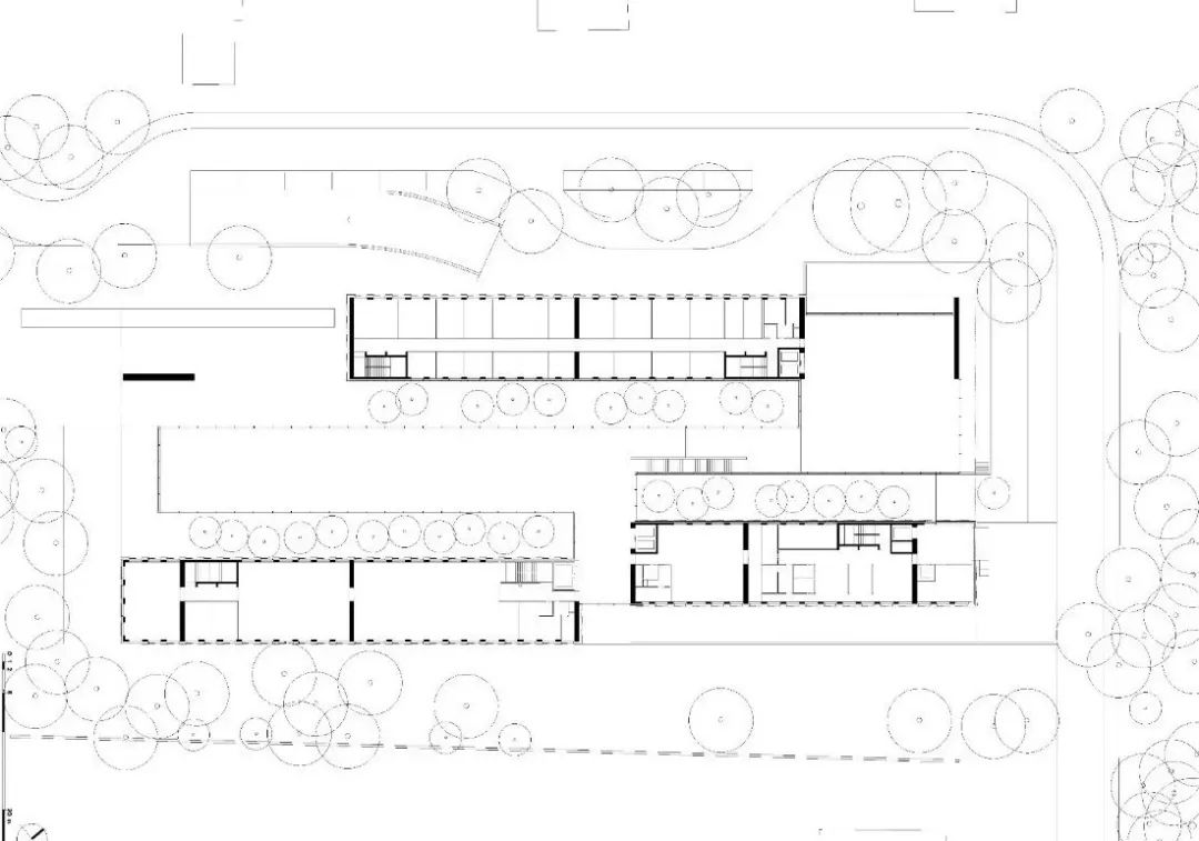
▲总平面图

▲剖面图
联合国艾滋病防治组织(UNAIDA)是联合国防治艾滋病的一个联合项目。该组织与世界卫生组织(WHO)共同坐落在前世界卫生组织总部园区的一座办公大楼里。这座大楼由屈米(Jean Tschumi)于20世纪60年代建造。

▲ WHO办公大楼旧楼,Tschumi (1949-1966)

▲鸟瞰实景

▲ 建筑内部中庭
新大楼旨在提升原址的品质,就其地形地势,对屈米恢弘的高层建筑设计进行了新的诠释。屈米的设计如同一块于倾斜平行的长条方块;新的建筑如同一个水平放置的体块,于两层宽敞的办公楼漂浮在这片倾斜的地块上。

▲建筑外立面

▲建筑外立面细部
建筑的三条“腿”举起了上面的办公楼层,形成一个高阔的透明大厅,这样的设计使你从透明大厅一眼看穿总长110米的区域——从入口到位于另一端略高位置的餐厅。

▲建筑室内走道外景

▲建筑入口
园林区并未掩盖大楼的内部设计:从延伸到大楼内部的狭长的庭院,闪亮的地面到天花板及其雕刻,室外空间与室内空间相互融合。

▲建筑室内公共空间

▲建筑室内公共空间
在架空的两层主办公楼层,体现出最大的灵活性。联合国艾滋病防治组织有240名员工,大部分在这里办公,大概每间办公室一两名员工。

▲建筑入口景观

▲建筑入口
而世界卫生组织的240名员工则在数个开敞型办公区域里。与庭院平行的三个走道互相交织,向艾滋病防治组织办公楼的水平方向延伸。

▲建筑室内

▲建筑室内
镶有玻璃墙面的办公区域与走廊布置在一条线上。当来自不同文化的员工进入这里,领略其办公室内部景观,走廊,会议区是一次有趣的经历,他们将乐于美化,装饰自己工作的区域。
项目信息:
地点:瑞士日内瓦 GENEVA, SWITZERLAND
业主:WHO/UNASIDS
建筑设计:Baumschlager Eberle Ziviltechniker Gmbh
景观设计:Vogt Landschafts Architekten
建筑技术:HL Thchnik AG Lauber Iwisa
结构工程:DI ERNST MADER & DI BRUNO RISSI
基地面积:14,065m2
建筑占地面积:3,956m2
总建筑面积:14,479m2
项目时间:2002-2007
本文转自:Be建筑设计,版权归作者所有
特别声明
本文为自媒体、作者等档案号在建筑档案上传并发布,仅代表作者观点,不代表建筑档案的观点或立场,建筑档案仅提供信息发布平台。
13
好文章需要你的鼓励
参与评论
请回复有价值的信息,无意义的评论将很快被删除,账号将被禁止发言。
评论区