- 注册
- 登录
- 小程序
- APP
- 档案号
德国gmp建筑设计有限公司 · 2025-10-21 14:18:53

© Marcus Bredt
位于莱比锡新城区的拉贝特体育游泳馆,由gmp·冯·格康,玛格及合伙人建筑师事务所规划设计,是一座符合被动式建筑标准的模块化新建筑。项目将高效的体育基础设施与经济可持续的装配式建造方式相结合,为学校、俱乐部及大众体育提供了急需的水上运动场所。
With the Sportbad am Rabet in Leipzig’s Neustadt district, architects von Gerkan, Marg and Partners (gmp) have created a much-needed indoor swimming facility for schools, clubs, and recreational swimmers. The modular new building, designed to the Passive House standard, combines functional sports infrastructure with an economical system-based construction approach.

© Marcus Bredt

© Marcus Bredt
新游泳馆坐落于莱比锡市中心的奥托-伦基广场(Otto-Runki-Platz),介于繁忙的铁道大街(Eisenbahnstraße)与邻近的拉贝特城市公园之间,并以该公园命名。建筑及其周边绿化提升了场地的空间品质,形成了一个新的社会聚集点,吸引来自不同年龄与社会背景的市民前来活动。建筑体量以简洁的带有大型切口的立方体为主,北侧与现有街区肌理自然衔接,延续城市界面。东南侧则设有绿意盎然的前广场,与保留的老树及毗邻的公园景观融为一体。
Located on Otto-Runki-Platz in the heart of the city, the new indoor swimming pool lies between the urban traffic corridor along Eisenbahnstraße and the adjacent Rabet Park, from which the pool takes its name. The building and its surrounding landscaped areas have enhanced the spatial quality of the site and redefined it as a social meeting place that brings together people of all ages and backgrounds. The facility consists of rectangular units, separated by large-scale recesses, and borders the edge of the square to the north and west while retaining many of the existing trees to the south and east. To the southeast, the landscaped forecourt incorporates some of these old trees and seamlessly leads on to the neighboring park.

© Marcus Bredt

© Marcus Bredt
“从多方面看,拉贝特体育游泳馆为简单而坚固的建筑树立了标杆”,gmp合伙人兼执行总裁施特凡·胥茨表示。“我们为建筑内外开发了一套由清水混凝土元件组成的模块化结构,这些元件内置隔热层,在工厂精确预制后于现场完成准确装配。这种高效的模块化建造方式造就了结构清晰的建筑体。”高度预制化也显著减少了施工阶段的噪音与环境负荷。
“In a number of ways, the Sportbad am Rabet sets an example for how to build simply in our time,” emphasizes Stephan Schütz, Executive Partner at gmp. “We developed a modular system made of fair-faced exterior and interior exposed concrete elements with integrated insulation that were precisely prefabricated in the factory and assembled on-site with exact fits. This efficient modular construction method has resulted in a clearly structured, striking building form.” The approach also significantly reduced noise and emissions during construction.

© Marcus Bredt

© Marcus Bredt
建筑外立面结合了浅色清水混凝土与玻璃基座。环绕建筑的大面积玻璃幕墙为室内引入充足的自然光,营造出开放的氛围,模糊了室内与室外的界限,使游泳馆自然融入城市生活。建筑的通透性强化了其作为社区公共空间的属性,既满足市民日常锻炼的需求,也促进了城市社交与安全感的提升。
The sports pool’s façade combines light-colored fair-faced concrete with a transparent base zone. The continuous floor-to-ceiling glazing creates a sense of openness, allows abundant natural light to enter the interior, and offers visual connections between inside and outside — which means the pool is a visible part of city life rather than being shut off from it. Here, transparency serves as a means of communication and connection with the urban context. In this way, the swimming facility becomes a social hub for the neighborhood, actively fostering community interaction.

© Marcus Bredt
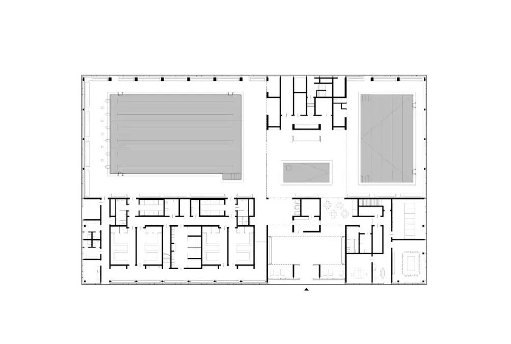
室内空间延续了外部材料语言,以清水混凝土与玻璃为主。高挑的天花板界定了不同的泳池区域,包括六泳道标准池、教学池及儿童戏水池。顶部天窗将柔和的自然光洒向水面。整体设计以简约为原则,服务于运动训练的核心功能。
On the inside, glass and fair-faced concrete are also the defining features. Turquoise wall tiles pick up and continue the horizontal line of the fenestration. High ceilings distinguish the different swimming areas, which include a six-lane competition pool, a teaching pool, and a children’s pool. Large skylights bring in additional daylight to brighten up the water surfaces. The clear, restrained design is entirely focused on the facility’s function as a sports pool.

© Marcus Bredt
整个项目以最少的材料与构件实现最大的建筑效能为设计理念,并以此作为降低资源消耗的有效手段。
The consistent reduction of materials and components to the essentials serves as a guiding principle throughout the project, effectively minimizing resource use.

© Marcus Bredt
游泳馆遵循被动式建筑标准,符合城市的可持续发展目标。广泛绿化的蓄水屋顶和昆虫草坪也为此做出了贡献,不仅弥补了建筑开发造成的绿地损失,还促进了雨水的自然渗透与延迟排放。建筑同时采用了太阳能热水系统、光伏发电装置以及泳池水循环再利用系统。
The design incorporates Passive House standards and thus supports the city’s sustainability goals. The extensively greened retention roof with a wildflower meadow for insects compensates for the open space lost to the building footprint, promotes natural drainage, and delays the release of rainwater. Systems for solar thermal energy, photovoltaics, and water treatment for reusing pool water further contribute to energy efficiency. This modular, resource-efficient swimming facility demonstrates how thoughtful design and simple means can achieve urban and social integration, user-oriented functionality, and sustainability at the same time.
设计竞赛:2019年,一等奖
设计:曼哈德·冯·格康与施特凡·胥茨以及托比亚斯·凯尔
竞赛阶段设计团队:迪娜·博尔扬斯、大卫·费雷罗·森特诺、博扬·科切夫斯基、蒂洛·策默、曾雅涵、张天硕
实施阶段设计团队:米里娅姆·艾库特、迪娜·博尔扬斯、伊娃·陈、克里斯蒂安·多恩多夫、雷吉娜·盖尔、莫里茨·格拉布迈尔、杰西卡·诺伊曼、马丁·穆克、阿卜杜勒拉希姆·萨里伊尔德兹、维多利亚·肖克、米夏埃尔·朔尔茨、菲利普·斯蒂尔克、张天硕
施工监理:德累斯顿dellori deda 建筑事务所
结构设计:柏林HBI Hartwich Bernhardt 工程师事务所
机电顾问:萨克森州利希滕施泰因Bauconzept 规划公司
建筑物理:魏因海姆vRP von Rekowski und Partner
消防设计:柏林imKONTEXT.berlin
景观设计:莱比锡Einenkel 景观设计事务所
业主:莱比锡体育游泳馆
建筑面积:4853 平方米
泳池面积:600 平方米
Competition 2019, 1st prize
Design Meinhard von Gerkan and Stephan Schütz with Tobias Keyl
Competition Team Dinah Borjans, David Ferreiro Centeno, Bojan Kocevski, Thilo Zehme, Zeng Yahan, Zhang Tianshuo
Detailed Design Team Miryam Aykurt, Dinah Borjans, Eva Chan, Christian Dorndorf, Regina Geier, Moritz Grabmayr, Jessica Neumann, Martin Muc, Abdurrahim Sariyildiz, Viktoria Schock, Michael Scholz, Philip Stillke, Zhang Tianshuo
Site Supervision dellori deda Architects
Structural Engineering HBI Hartwich Bernhardt Engineers, Berlin
HVAC Bauconzept Planungsgesellschaft, Lichtenstein/Saxony
Building Physics vRP von Rekowski and Partner, Weinheim
Fire Protection imKONTEXT.berlin, Berlin
Landscape Design Einenkel Landscape Architecture, Leipzig
Client Sportbäder Leipzig GmbH
GFA 4,853 m²
Swimming Pool Area 600 m²

总平面图 © gmp Architekten

一层平面图 © gmp Architekten

剖面图 © gmp Architekten

剖透视图 © gmp Architekten
特别声明
本文为自媒体、作者等档案号在建筑档案上传并发布,仅代表作者观点,不代表建筑档案的观点或立场,建筑档案仅提供信息发布平台。
21
好文章需要你的鼓励
参与评论
请回复有价值的信息,无意义的评论将很快被删除,账号将被禁止发言。
评论区