- 注册
- 登录
- 小程序
- APP
- 档案号
壹舍设计 · 2023-02-14 11:08:05

外观于物,内感于心,居所总是在由表及里的渗透中,关照情感,滋养日常。天安别墅样板间坐落于常州西太湖之畔,由方磊领衔壹舍团队担纲设计,依托原有地域、水系等特性,以感知思维切入,融合酒店式的卓越体验,不断探索自然语境下的至臻之居,旨为当代塔尖精英探寻一种全新的宜居范本,让生活与精神全然丰盈。

开篇 & 造境
















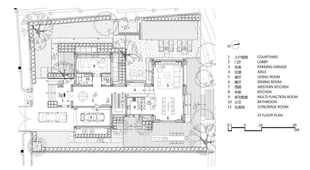
以融洽的存在,表达静谧自由的本色。将木盒子浑然嵌入,中厨于内、西厨于外,这包含着对每一寸空间的周全应用,也是对功能需求的完善与补充。
02




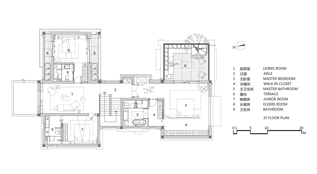
参照酒店式起居场景,于二楼构造枢纽之地,套间居室环绕。提取颇具东方意象的屏风形态,对沙发呈包裹姿态,并以此开启围合布局。内敛规整的低调秩序亦进一步描摹酒店气韵,透过阵列式陈设、高饱和色点缀,强化典雅之境。在深浅对比、错落有致中,仪式感与随性气息兼具。











细节总潜藏在方寸间,客卫利用体块、纹理、光影强化个性,创造通透轻盈之感,亦兼顾本质的使用需求。
03


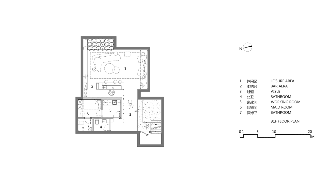
休闲区从兴趣爱好、娱乐社交的触点出发,依托建筑结构延展并利用采光井,将光照引入,打破沉闷。在软装陈设上,也充分考量其与空间轮廓的适配以及构成关系,在形、色、质上全方位统筹,精心呵护每一细腻点滴中的惬意享受。







效果图▲



B1F 平面图▲
项 目 信 息
项目名称 | 常州天安别墅样板间
设计面积 | 480㎡
完工时间 | 2022年10月
设计公司 | ONE HOUSE DESIGN 壹舍设计
设计主创 | 方磊
参与设计 | 蒙程鹏、柴润之、胥磊、刘思宇、李斌、陈汶霄
视觉陈列 | 李文婷、孙雨辰、王伊荣、李静
项目摄影 | 张静
方磊,现代简约设计先行者,都市精英生活方式引导者,壹舍设计创始人。
近年来获得诸多国内外室内设计大奖。他认为设计师思维是感性与理性的结合,擅长用现代简约的美学精神展开空间多维描述,以克制与平衡的手法、表象和内在的矛盾统一来表现丰富而纯粹的设计本质。
ONE HOUSE DESIGN壹舍设计由方磊创建于2009年,凝聚了一批拥有前瞻性理念、国际化视野的活力团队。作为集室内设计、软装设计、环境设计等一体化的综合性专业设计公司,壹舍主要从事地产售楼处、样板间、会所、商业空间、办公空间、精品酒店等设计项目,为众多知名地产商提供至高水准的个性化定制服务。以过硬的专业能力和不懈的探索,积极面对未来与市场的全新考量,致力于当代新人居观念的启迪与更新,为设计提供更多可能。
特别声明
本文为自媒体、作者等档案号在建筑档案上传并发布,仅代表作者观点,不代表建筑档案的观点或立场,建筑档案仅提供信息发布平台。
28
好文章需要你的鼓励
参与评论
请回复有价值的信息,无意义的评论将很快被删除,账号将被禁止发言。
评论区