- 注册
- 登录
- 小程序
- APP
- 档案号
CLOU Architects 柯路建筑 · 2022-07-13 12:37:57

北京长安街的标志性建筑双子座大厦,最初于2005 年为韩国LG集团而建造,于2020年被新加坡政府投资公司(GIC)收购,由大悦城控股并致力打造全新的国际甲级办公综合体。CLOU建筑对塔楼裙楼外立面及室内进行改造提升设计,项目包含3.2万平米的裙楼及1.1万平米建筑面积的塔楼,预期于2022年底完工并重新对外开放。





左右滑动查看改造前现状
Originally built in 2005 for South Korea’s LG Group, the landmark twin towers that characterize the Yong’anli stretch of Beijing’s Chang’An Avenue were purchased in 2020 by GIC, Singapore’s sovereign wealth fund and held by Grandjoy, will be upgraded to become a new international Grade A office complex. CLOU architects is redesigning the twin towers' podium facade and interior, which is expected to be completed and reopened to the public in 2022.

汇京双子座大厦改造后中庭效果图


汇京双子座大厦坐落于北京市朝阳区建国门外大街,位于CBD区域的核心腹地,大厦周边各国使馆、外企驻中国办事处、跨国金融机构等国际公司环伺,高端商务氛围浓厚。
Located on Jianguomenwai in Chaoyang District of Beijing, the Huijing Twin Towers are situated in the heart of the CBD area, surrounded by international institutions such as embassies, China offices of foreign companies and multinational financial agencies with a very high-end business atmosphere.

CLOU柯路对连接两座塔楼的裙楼区域进行重新设计:对室内风格进行现代化升级,将过去阴暗、封闭的垂直流线竖井结构改造为一个明亮、多面立体、以用户为中心的公共空间,与相邻的办公空间兼容互补;室内经过翻新后更具吸引力,并以天窗改进内外流线,提升步入其中的空间感。
The podium zone that connects the two towers is subject to a complete redesign: an interior contemporization from a dark, compartmentalized vertical circulation shaft into a bright, multi-faceted, and user-centered space complementing the adjacent office uses; and an exterior face-lift with welcoming facades and skylights that underline circulation and entrance situations.

裙楼的外墙被重新配置,以强调中庭作为一个独立元素的重要性,以及两座塔楼之间的连接性:一个宽敞的中央门户通道取代了原设计中多个狭窄的入口,而水平的外墙条纹唤起了整个建筑群平静的现代感与和谐感。
Podium facades are reconfigured to emphasise both the revived importance of the atrium as an individual element, and the connectivity between the two towers: a generous central gateway access replaces the multiple narrow entrance points of the original design, while horizontal façade striations evoke a sense of contemporary calm and harmony across the entire complex.




中庭的设计为现代联合办公区与休闲空间的交替衔接,构成一个都市庭院绿洲,一个全天的社交聚会场所,阳光和景观的引入为商业和办公的融合空间营造舒适的环境。从白天到夜晚的综合功能设施,确保中庭五层空间在办公时间之外的活力。利用大厦中塔的独特优势,30米挑空的阳光中庭由全景通透的玻璃幕墙包围,扩大了楼宇的采光面。地下层提供包括零售商业,餐饮,城市生活服务,并与永安里地铁站直连。

Interspersing contemporary workspace with recreational offers, the central atrium was conceived as an urban courtyard oasis, an all-day social gathering spot where sunlight, landscaping, and art create a comfortable environment at the intersection of work and commerce. Day-to-night uses, from co-working gardens to health and wellness facilities and dining establishments, ensure vibrancy of the five above-ground levels of this central zone beyond office hours, while the basement offers extended daily services in direct connectivity to Yong’anli metro station.

垂直交错的平台与扶梯连成灵动的三维流线,散落于其间的绿色植物和艺术品在新扩建的天窗下创造出如绿植岛屿般的休闲角。
Vertically staggered platforms emphasize an animated three-dimensional circulation, with green plants and artwork creating connective islands of interest below a newly expanded skylight.

大面积的室内窗户在多层中庭和其相邻的服务设施之间建立了视觉互动。
Large interior windows establish visual interaction between the multi-storey atrium and its adjacent services.


高级简洁的现代设计语言延续到了双子塔的公共区室内设计:两个宏伟的底层大厅为主要办公空间创造了全新的入口空间体验,优雅、明亮的设计一直延伸到所有办公楼层的公共区域。
Public interiors continue the upscale contemporary language into the twin tower zones: two grand ground floor lobbies create a newly invigorated entrance experience to the prime office spaces, with the elegant, bright design theme extending into the public zones of all office floors.



概念阶段办公效果意向
改造后的大厦还持续优化运营服务,引入3C运营服务体系,将商业与写字楼运营深度融合,充分考虑公共空间的实用性和联动; 通过共享办公空间消解办公人群之间的隔阂,为租户提供一个悦享办公生活的沉浸式立体城市院落。
The building also introduces 3C operation service system, deeply integrating commercial and office operations with full consideration to the practicality and connectivity of public spaces. It recreates a three-dimensional urban courtyard, dissolving the barriers between office groups through shared spaces with an immersive public courtyard, providing an enjoynable office life for future tenants.

中庭剖面
Atrium section



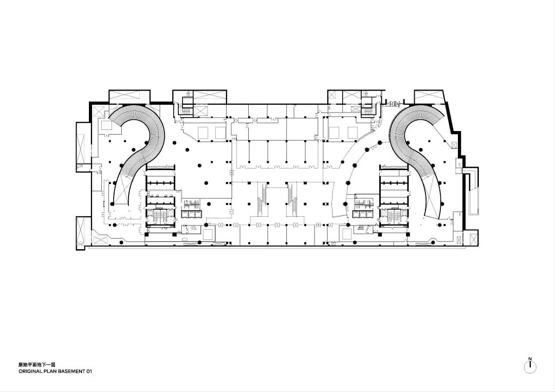
改造前平面 Plans Before



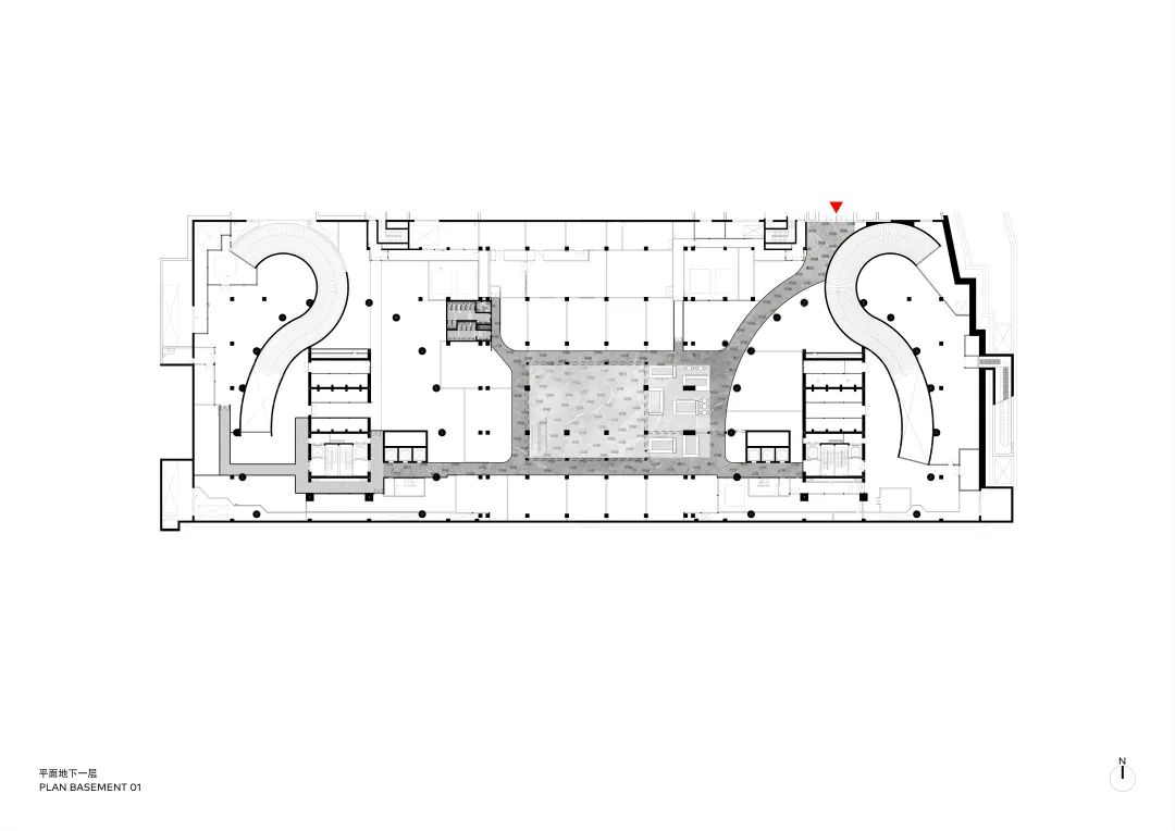
改造后平面 Plans After

项目名称:汇京双子座大厦改造
业主:大悦城 & 新加坡政府投资公司 (GIC)
范围:建筑、室内、外立面
类别:综合体:商业、办公
地点:中国北京
面积:150,000 平方米
状态:2022年完工
设计团队:Jan Clostermann,李琳,吴建云,钟亚迪,赵晶爽,Julien Douillet,赵濛濛,Sebastian Loaiza,Tiago Tavares,王艺霏,张志,马文蕾,周一诺
建筑院:北京维拓时代建筑设计股份有限公司
室内精装:北京维拓时代建筑设计股份有限公司
机电:迈进工程设计咨询(北京)有限公司
灯光:RDI瑞国际照明设计
幕墙:上海辅厦建筑工程咨询有限公司
标识:湖北贝肯视觉设计有限公司
Project Name: Beijing Huijing Twin Towers Renovation
Client: Grand Joy & GIC Singapore
Scope: Architecture, Interiors, Facade
Program: Mixed Use: Retail, Office
Location: Beijing, China
Size: 150,000 sqm
Status: Completion in 2022
Design Team: Jan Clostermann, Lin Li, Jianyun Wu, Yadi Zhong, Jingshuang Zhao, Julien Douillet, Mengmeng Zhao, Sebastian Loaiza, Tiago Tavares, Yifei Wang, Zhi Zhang, Wenlei Ma, Karen Zhou
LDI: Beijing Victory Star Architectural and Civil Engineering Design
Interior contractor: Beijing Victory Star Architectural and Civil Engineering Design
MEP: Meinhardt China
Lighting: RDesign International Lighting
Facades: Shanghai Fusha Construction Engineering Consulting Co., Ltd
Signage: Hubei Beacon design
特别声明
本文为自媒体、作者等档案号在建筑档案上传并发布,仅代表作者观点,不代表建筑档案的观点或立场,建筑档案仅提供信息发布平台。
19
好文章需要你的鼓励
参与评论
请回复有价值的信息,无意义的评论将很快被删除,账号将被禁止发言。
评论区