- 注册
- 登录
- 小程序
- APP
- 档案号
crox · 2020-12-30 17:49:39

环境背景 | Background
高友村位于广西侗族自治区,接近洞庭湖水系源头,在海拔千米的高山上住着400多户人家,自古以来遗世而独立。他们把自己生活的村寨命名为“高友”,意为高山上的朋友。高友村完整保存着数千年的侗族建筑和民俗文化,被誉为“活的博物馆”。2012年,包括高友村在内的三江侗寨村落被列入世界文化遗产预备目录。2016年成为国家重点扶贫计划选定的美丽新乡村。

设计介入| Design Intervention
高友小学地处村庄的至高点,由村庄鼓楼出发,需拾两百级台阶而上。校门口老桂花树边有栋废弃的木楼,因为年久失修而不堪使用。而木楼的更新再利用能为村落注入新的活力。我们相信以适当的设计介入可以避免全面翻新破坏,既能保持建筑的原本的风貌,同时也有助于为高友村提供一种新的开发模式。

侗族木构建筑是出色的民族传统文化表现形式,属于高友村深厚历史文化的一部分。在梳理高友的自然、人文及传统建筑体系,并分析其可行性后,我们决定不改变木楼原本的构建,而是在沿用传统工法谱系的基础上借助电脑测算出替换节点,用当地的新杉木代替腐朽的建筑结构,并由当地经验丰富的木匠进行协助。

△梁柱替换示意

△改造后新旧木头的对比
尊重木楼传统构建方式既传承了侗族文化民俗,使得建筑能更好地与当地环境融入,也能控制预算,使改造工程更为可行。值得一提的是,原本木构建筑营造技艺的传授以建筑匠师间的口耳相传或以只流于当地的特殊建筑符号模型说明为主,而通过我们的结构计算后,能让当地木匠与建筑师开始用图纸沟通,精准地替换掉老朽的木材与梁柱,并留下记录。


△外立面改造前后(左右移动查看)
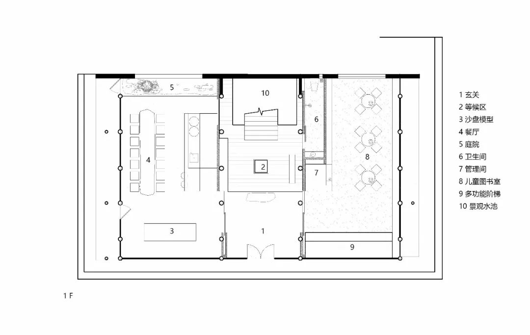
空间规划 | Space
木楼过去曾为教室、教师宿舍与学生图书室,而我们并不想单一的还原本貌,决定将其改造成一个多功能复合的乡村愿景馆。因为木楼的改造需要迎合并适应多方面的需求:学校希望重建图书室与多功能会议空间,而外部来访专家学者希望能拥有驻地工作站,同时高友村希望可以提供一处兼顾文化展示与接待客人的空间。


△当地民俗民风
我们在愿景馆引入了高友日常的生活形态:一楼放置高友村家家户户常见的火塘,而接待区配备灶台,可以在此烹饪传统菜肴,邀请宾客入席,伴随着真情心意,给他们带来独特的在地体验。


△传统民居生活元素

△接待空间
另一侧为少儿图书馆及活动室,大面积的木质地板给予孩子们更多自由与自在。



△活动室与图书馆
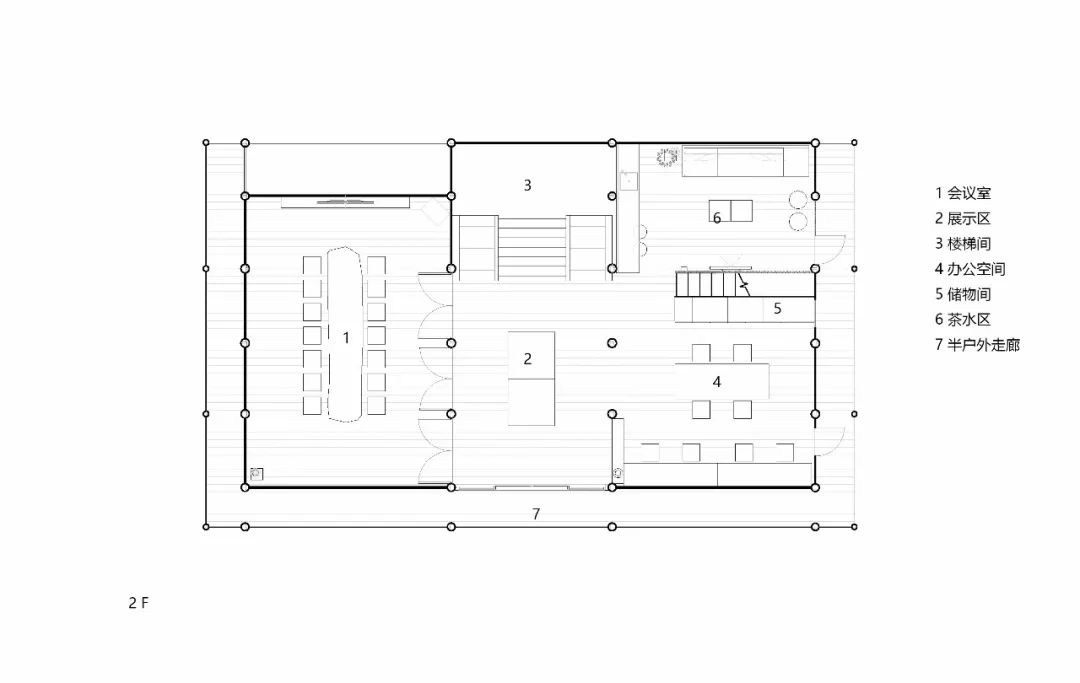
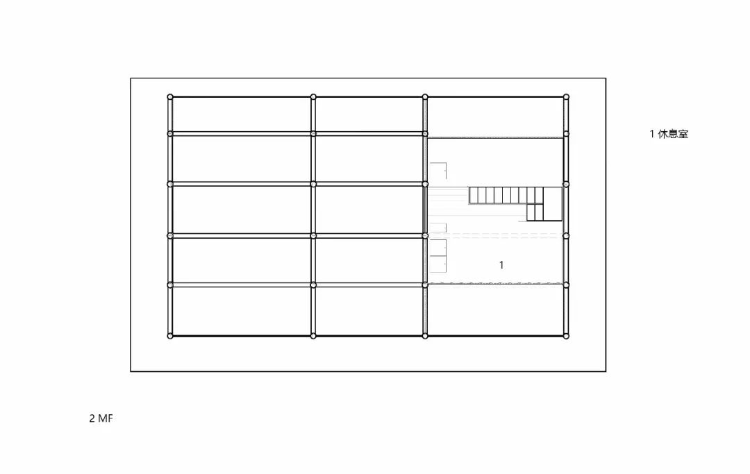
二楼为高友文化展示区,三楼夹层被设置成工作室空间,鼓励各类学者及创意工作者在此进行驻地创作,以高友独特的民俗自然风情给养灵感。



△办公及展示空间



△夹层及半户外走廊

△爆炸图



△楼层平面图


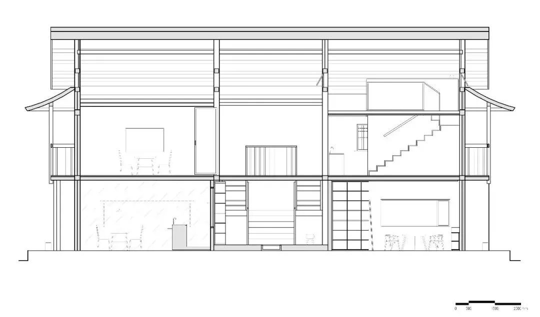
△剖面图
自然取材| Local Material
木楼原本的设计较为封闭,而改造中我们积极引入自然元素,首先在南北两侧以玻璃替代山墙,加强自然光的存在感,并且在一楼东面植入半户外的内庭,增大室内的通风与明亮感。光线与绿色植物的进入也让空间多了生气。高友愿景馆强调原木质感,以新杉木来取代朽坏的木头,与富有历史韵味的老木在颜色上有了鲜明对比,彰显时间的痕迹。水泥地面与页岩延伸于内切成的灶台,也是对当地材料运用的有趣方式,这样能同时找到石与木两种材料间的平衡,使人感受到新与旧不断在此交替转换。


△接待区改造前后对比
室内缀以突出结构美感的现代化桌椅,为传统的高友民居增添了新的可能。

△现代的自然空间
这样的建筑是介于小学与村落间、城市与乡村间、传统与现代间的场域,人们在此交流并体验不一样的文化,并留下对高友未来的想象与期许,形成田园诗歌般的美好寄托。
后记 | Postscript
自古以来,高友村都是隐士终生寻找的“世外桃源”,也是文人追求向往的“诗意家园”,高友愿景馆以“愿景”为名,希望它的投入使用将改变乡村校园的空间结构,整合各方意愿与资源,描绘出和谐的未来蓝图。愿景馆目前作为乡村公共文化场所使用,成功对接公益活动“为爱上色”等,逐步为高友的理想未来搭起桥梁,开拓出一种新的教育模式。


△为爱上色 公益活动
项目名称:高友愿景馆
设计单位:CROX阔合
设计团队:林琮然、莫抒琳、黄赛、陈敏睿
项目地点:广西三江高友村
完成时间: 2019/7
建筑材料: 水泥,杉木
建筑面积:190平方米
景观面积:240平米
CROX闊合跨足建筑&规划、景观&室内、艺术&展览等领域,秉持前卫自然的设计意识,在不同地域语境中提取文化,传导人文价值,将空间和人的关系转变成一种开放的对话性结构,呈现生活每一种可能。
媒体联络:press@crox.com.tw
特别声明
本文为自媒体、作者等档案号在建筑档案上传并发布,仅代表作者观点,不代表建筑档案的观点或立场,建筑档案仅提供信息发布平台。
18
好文章需要你的鼓励
参与评论
请回复有价值的信息,无意义的评论将很快被删除,账号将被禁止发言。
评论区