- 注册
- 登录
- 小程序
- APP
- 档案号
建筑现场 · 2026-02-09 16:54:53

起居室©朱雨蒙
故事必须从2005年说起。那一年,居住于中国腹地重庆的人们第一次接触到了来自遥远欧亚大陆另一端尽头的生活梦想。开发商在宣传单上写下这样的句子:“在伊比利亚半岛上点燃的热情,会沿着地中海的岸线一直蔓延到意大利的脚跟。在托斯卡纳的平岗上接受来自世界的顶礼。建筑,因此成就了风格”。在席卷神州的房地产浪潮下,“风格”成为一个寄托未来生活希望的标签。仿佛这被称为“西班牙式”的风格能赋予的不仅仅是建筑外观,还能将西班牙终年强烈的阳光、刀削斧凿般锐利的阴影、以及干爽的空气一并带到重庆。
The story begins in 2005. That year, people living in Chongqing, deep in the hinterland of China, first brushed against a dream of life from the far end of the Eurasian continent. Developers wrote lines like this on their flyers: "The passion ignited on the Iberian Peninsula will spread along the Mediterranean coastline all the way to the heel of Italy. Receive the world’s adoration on the hills of Tuscany. Architecture, thus, achieves style. "Under the real estate wave sweeping across China, "Style" became a vessel for hopes of a future life. It was as if this so-called "Spanish Style" could bestow not just an architectural façade, but also transport Spain’s year-round intense sunlight, sharp, chisel-cut shadows, and dry air all the way to Chongqing.
在时间的见证下,“风格”败给了“生活”。重庆的光影因云层遮挡缺乏立体感,气候潮湿闷热。在地自然条件与西班牙南辕北辙。多云气候下特有的漫射阳光无法通过窄窗进入室内。因此即使在盛夏正午,偏爱明亮居室的父亲也不得不点亮所有灯具以保障基本的光照。缺乏直射阳光更严重后果,是导致紧邻挡土墙的一层因重庆漫长的梅雨季节而潮气凝聚。由于室内墙体和地面结露,人始终被湿冷环绕。除了终年开着除湿机,母亲甚至将墙体刷成明亮的黄色,期望用视觉的温暖来弥补触觉的不适。这个家在空间上留给我最强烈的印象就是昏暗的光线,不知应作何用途的天井和后院,以及许多难以使用和打扫的犄角旮旯。
In the fullness of time, "Style" lost out to "Life." Chongqing’s light, filtered through heavy cloud cover, lacks depth, and the climate is humid and stifling. The local natural conditions are diametrically opposed to those of Spain. The diffused light, characteristic of cloudy weather, could not penetrate the narrow windows into the interior. Consequently, even at high noon in midsummer, my father, who prefers bright rooms, had to turn on every light just to ensure basic illumination. A more serious consequence of the lack of direct sunlight was the accumulation of moisture on the ground floor, which sits tight against a retaining wall, due to Chongqing’s long Plum Rain season. With condensation forming on the walls and floors, one was constantly surrounded by cold dampness. Aside from running dehumidifiers year-round, my mother even painted the walls a bright yellow, hoping to use visual warmth to compensate for the tactile discomfort. The strongest impressions this home left on me spatially were dim lighting, an atrium and backyard of unknown purpose, and many nooks and crannies that were difficult to use or clean.
迁居十五年后,父母提出了希望由我来改造住宅的想法。除了改造老化失能的管网以及更换损坏的设备,他们也希望根据他们已经形成的生活经验重塑空间。父母对设计提出了三点希望:“简单”,“经济”,“易用”。在设计过程中,我和父母的对话始终围绕着“在这里会发生什么”,而非“应该摆放什么”或“应该表达什么”。设计非常小心地选择需要改造的界面,尽可能的为已经存在的家具、尚可继续使用的门窗妥善地在新居内找到用武之地。我和父母在设计过程中达成了一个共识,即家作为生活展开和变化的舞台,而不是占领生活的“工艺品”。在如此思考的引导下,改造不再坚持基于“风格”或者“叙事”的创作,而演变为一次整理生活的努力。
Fifteen years after moving in, my parents proposed the idea that I renovate the house. Beyond upgrading the aging, dysfunctional plumbing and replacing broken equipment, they hoped to reshape the space based on the living experience they had accumulated. They had three requests for the design: "Simple," "Economic," and "Easy to use." During the design process, the dialogue between my parents and me centered consistently on "what will happen here," rather than "what should be placed here" or "what should be expressed." The design was very careful in selecting which interfaces to modify, striving to find appropriate uses in the new home for existing furniture and doors that were still functional. My parents and I reached a consensus: the home is a stage for life to unfold and evolve, not an "artifact" that occupies life. Guided by this thinking, the renovation ceased to be a creation based on "style" or "narrative" and evolved into an effort to organize life.

天井改造前©也似建筑

楼梯改造前©也似建筑

起居室改造前©也似建筑

餐厅改造前©也似建筑
整理的第一件事:描摹生活轨迹。
既有的三层建筑位于跌落的地形上,南北贯通。多年生活习惯形成了垂直功能分区:连接南侧小区机动车道的二层是主入口,分布着起居室、车库、客房、阳台和天井;连接房屋人行次入口的一层背靠山体挡墙、面朝后花园,由餐厅、厨房和娱乐室组成;三层则是最为私密的就寝区域,有两个卧室与一个书房。在经过不断地讨论与方案比选后,该分区被改造方案继承。思考集中在如何让房屋释放空间潜力,成为未来生活演进的催化剂。
The First Act of Organization: Tracing the Trajectory of Life
The existing three-story building sits on terraced terrain, accessible from both north and south. Years of habit had formed a vertical functional zoning: the second floor, connecting to the vehicular road in the southern community, served as the main entrance, housing the living room, garage, guest room, balcony, and atrium; the first floor, backing against the hillside retaining wall and facing the rear garden, connected to the pedestrian secondary entrance and consisted of the dining room, kitchen, and entertainment room; the third floor was the most private sleeping area, containing two bedrooms and a study. After continuous discussion and comparison of schemes, this zoning was retained in the renovation. The thinking focused on how to release the spatial potential of the house to become a catalyst for the evolution of future life.

剖面©也似建筑

天井玻璃吊装记录©也似建筑

天井施工记录©也似建筑

天井玻璃安装记录©也似建筑

楼梯施工记录©也似建筑

起居室施工记录©也似建筑
整理的第二件事:以“轻”动作解放空间。
考虑到房屋是与其他三个邻居共享建筑结构,以及经济性原则,改造完整了保留了原结构体系以及上下水主体管网。优化集中在容易拆改的非承重砌块墙体,力图以最“轻”的手段介入。在二层,通过挪移一堵面向天井的墙体,设计解决了增加无障碍电梯、改变客房位置,扩大天井面积半户外部分使用潜力、增加了换鞋更衣间等目标。在一层,通过取消一排墙体,北向的娱乐室与晾晒门廊被并入室内,餐厅被前移至靠近后院,第一次让室外景观成为就餐活动的一部分。超长的中岛成为空间焦点。它被设计为一个舞台,处于灶台、餐桌、麻将桌的环绕下。在聚会的时候,热衷亲自下厨的父母能够与家人朋友讨论厨艺的同时一显身手。开放的楼层中有一面墙体延伸向室外。它在协调出一个半开放的烹炒隔间,避免川菜的重油烟影响就餐空间。它还在后院中切割出设备间,整合了空调室外机、热水器、晾晒等功能。在三层,通过增加一堵外墙体,将一段半室外走廊消除,从而放大了室内空间的灵活性,改善了夏季和冬季的体感,并解放了衣帽间等原本只能位于建筑布局深处的功能,激发了新的生活想象。建筑设计并不追求强烈的风格宣言,自然而然地让房屋的外立面延续了过去的风格,无声地没入社区环境之中。设计心思被用在与身体有关的细节上:大门拉手和楼梯扶手的形式呼应了推拉门扇与上下楼梯的具体动作需要;设备与收纳体量像是穿插进生活的盒子,为喜欢收纳打扫的父母提供了可拓展的储藏空间;自然纹理的木材、质感涂料、及拉丝不锈钢配件的材料搭配力求素朴和温暖,并易于保养与更换。
The Second Act of Organization: Liberating Space with "Light" Moves
Considering the house shares its structural framework with three neighbors, and adhering to the principle of economy, the renovation completely preserved the original structural system and the main plumbing lines. Optimization focused on non-load-bearing block walls that were easy to alter, attempting to intervene with the "lightest" possible touch. On the second floor, by shifting a wall facing the atrium, the design achieved several goals: adding an accessibility elevator, relocating the guest room, expanding the usable semi-outdoor area of the atrium, and adding a cloakroom/mudroom. On the first floor, by removing a row of walls, the north-facing entertainment room and drying porch were merged into the interior. The dining room was moved forward near the backyard, making the outdoor landscape a part of the dining activity for the first time. An extra-long island became the focal point of the space. Designed as a stage, it is surrounded by the stove, dining table, and mahjong table. During gatherings, my parents—who love to cook personally—can discuss culinary arts with family and friends while showing off their skills. In the open floor plan, one wall extends outdoors. It coordinates a semi-open stir-fry cubicle (avoiding the heavy oil smoke of Sichuan cuisine affecting the dining space) and carves out an equipment room in the backyard, integrating the AC outdoor units, water heater, and laundry drying functions. On the third floor, by adding an external wall to eliminate a segment of semi-outdoor corridor, we amplified the flexibility of the indoor space, improved thermal comfort in summer and winter, and liberated functions like the walk-in closet that could previously only be located deep within the layout, sparking new imagination for living. The architectural design does not seek a strong stylistic manifesto; it naturally allows the façade to continue the past style, silently blending into the community environment. Design effort was spent on details related to the body: the forms of door handles and stair handrails echo the specific movements of pushing sliding doors and climbing stairs; equipment and storage volumes act as boxes inserted into life, providing expandable storage for parents who love to organize and clean; the material palette of natural wood, textured paint, and brushed stainless steel strives for simplicity and warmth, while being easy to maintain and replace.

“收纳盒”与光通道楼梯©朱雨蒙

起居室入口©朱雨蒙

起居室“午睡飘窗”©朱雨蒙

利用原有梁高低不同划分空间©朱雨蒙

舞台般的中岛©朱雨蒙

一层厨房©朱雨蒙

餐厅与后院©朱雨蒙

三层公共走廊©朱雨蒙

次卧入口©朱雨蒙

兼做书房的次卧©朱雨蒙

主卫生间©朱雨蒙
整理的第三件事:让阳光进入室内。
为了解决“西班牙式”建筑为重庆的居住带来室内光照不足问题,天井的北侧墙体被打开,在三楼和二层分别安装了巨大的玻璃窗。二十年来第一次,父母不必在白天全部打开室内的灯光。其中二层的玻璃墙体重新定义了天井与室内的关系,让二者在视觉上被整合为一体,两者互为背景和纵深——天井从此前纯粹的交通空间转变为起居室的延伸。原本被放在室内的一套茶桌椅被搬到了天井的屋檐下,成为父亲午后享受阳光和茶点的去处。为了达成这一设计目标,我们订制了一面3米高、3.8米宽的单片玻璃,作为天井落地玻璃幕墙系统的核心产品(由于其尺度超过了建筑入口,我们采用了吊车将其吊装进入天井进行安装,成为改造期间具有纪念意义的瞬间)。这个连续的、包含起居室入口的玻璃幕墙与天井等宽,消解了院落由于原始建筑风格而产生的封闭感和沉重感。建筑的二层仿佛脱离了重力的约束,悬置在金属和玻璃组成的通透隔断之上。在室内,因经济考量而保留的室内楼梯成为一个引导光线进入室内的“装置”。它并没有被理所当然地设计为一个完全通透的玻璃楼梯。相反,一个基于光照分析的实体雕塑体量贯穿建筑的垂直方向,在不影响光线进入的前提下,通过塑造阴影让光变得可被感知。在人的通行功能被电梯取代后,楼梯成为光在建筑内上下移动的主要手段。
The Third Act of Organization: Letting Sunlight In
To solve the issue of insufficient indoor lighting brought by the "Spanish Style" architecture to Chongqing living, the north wall of the atrium was opened up, and huge glass windows were installed on the third and second floors. For the first time in twenty years, my parents did not have to turn on all the indoor lights during the day. The glass wall on the second floor, in particular, redefined the relationship between the atrium and the interior. It visually integrated the two, making them background and depth for one another—the atrium transformed from a purely transitional space into an extension of the living room. A tea table set originally kept indoors was moved under the eaves of the atrium, becoming a place for my father to enjoy the afternoon sun and tea. To achieve this, we custom-ordered a single pane of glass 3 meters high and 3.8 meters wide as the core of the atrium’s curtain wall system (since its scale exceeded the building entrance, we used a crane to hoist it into the atrium for installation, which became a memorable moment during the renovation). This continuous glass curtain wall, equal in width to the atrium and containing the living room entrance, dissolved the sense of enclosure and heaviness caused by the original architectural style. The second floor seems to break free from gravity, suspended above a transparent partition of metal and glass. Inside, the staircase—retained for economic reasons—became a "device" to guide light indoors. It was not designed as a cliché fully transparent glass staircase. Instead, a solid sculptural volume based on light analysis cuts through the vertical direction of the building. Without hindering the entry of light, it makes light perceptible by shaping shadows. Now that human transit is handled by the elevator, the staircase has become the primary means for light to move up and down within the building.

天井昼间©朱雨蒙

天井夜间©朱雨蒙

天井门把手细节©也似建筑

三层透光窗©朱雨蒙

二层透光窗©朱雨蒙

楼梯将自然光带入一层©朱雨蒙

楼梯细部©朱雨蒙

一层餐厅©朱雨蒙
整理的第四件事:把 “问题”变为“可能”。
以上所有的墙体挪移、外维护开洞、或者功能变化,都必定会与原建筑实体发生冲突,进而制造出“冗余”。它们或者是处于房间之中的柱子,或者是因建筑造型凹凸进退的墙体,或者是高度不齐的横梁,不一而足。诚然,为了更加惊人的“设计效果”,我们可以通过技术手段来消除掉它们。(例如透过结构强化来取消部分柱子和改变横梁尺寸)但是否解决一些问题的关键是通过不再将之视为问题,而是可能性?是否建筑可以充当新与旧的协调者?因此在改造中,我们保留了这些“冗余”,赋予了它们新的意义。二层北侧曲折的墙体被改造为两个“飘窗”,成为父母喜爱的夏日午睡地点。起居室中间的柱子被作为装饰灯照亮天花。卫生间和玄关隔墙被轻轻“搁放”在地面上,与楼梯一起形成起居空间的视觉焦点。餐厅内高低不同的横梁露出吊顶,成为区分就餐区、娱乐区、和厨房的线索。三层的柱子则成为一个全身更衣镜。这些冗余的更大价值在于它们都在一个开放的场域内划分空间,以一种非强制性性的方式区别了场所。这种分割空间的动作是由人的身体与这些实体构筑物互动时激发的。它们是每一个空间内最具有决定性意义的“家具”。
The Fourth Act of Organization: Turning "Problems" into "Possibilities"
All the aforementioned wall movements, exterior openings, or functional changes inevitably conflicted with the original building entity, creating "redundancies." These were columns sitting in the middle of rooms, walls protruding or receding due to architectural molding, or beams of uneven heights. Admittedly, for a more stunning "design effect," we could have used technical means to eliminate them (e.g., structural reinforcement to remove columns or altering beam sizes). But isn't the key to solving some problems simply to stop viewing them as problems, but rather as possibilities? Can architecture act as a mediator between the new and the old? Therefore, in the renovation, we kept these "redundancies" and endowed them with new meaning. The zigzagging wall on the north side of the second floor was transformed into two "bay windows," becoming my parents' favorite spot for summer naps. The column in the middle of the living room became a decorative light feature illuminating the ceiling. The partition wall between the bathroom and the foyer was gently "placed" on the ground, forming a visual focus of the living space alongside the stairs. In the dining room, beams of different heights were exposed below the ceiling, becoming cues to distinguish the dining area, entertainment area, and kitchen. A column on the third floor became a full-length dressing mirror. The greater value of these redundancies lies in the fact that they delineate space within an open field, distinguishing places in a non-coercive manner. This act of spatial division is activated when the human body interacts with these physical structures. They serve as the most definitive 'furniture' within each space.

入户门与客房入口©朱雨蒙

起居室“冗余柱”©朱雨蒙

餐厅“冗余柱”©朱雨蒙

三层“冗余柱”©朱雨蒙

开放式衣帽间©朱雨蒙

盥洗空间©朱雨蒙
整理的第五件事:浸润。
这是一个没有“故事”的设计。我们相信建筑所做的退却,是生活迈出第一步的催化剂。激进而离奇的故事会被绵延的日常所消磨。随着父母的入住,建筑开始了新的生命周期。这一次父母自己成为了设计的主角,让改变持续发生着。从旧的家里搬来的一切慢慢地充实起空间:旧沙发、麻将桌、工艺品、字画、照片、餐具、书籍… …来访的客人常被提前请到一楼的餐厅,一边玩棋牌一边与准备饭菜的母亲拉家常。起居室中央的大长桌是父母爱好的堆场,随时都放满了杂志、茶具、零食。父亲也开始构想在天井里为孙子放上一个充气泳池、或是在家庭聚会时在后院摆上一桌火锅。父母的生活经验没有成为设计的约束。相反,它帮助我们着眼于真正重要的瞬间,而不是产品与概念。
The Fifth Act of Organization: Immersion
This is a design without a "story." We believe that the retreat made by architecture is the catalyst for life to take its first step. Radical and bizarre stories are eventually worn down by the continuity of daily life. As my parents moved in, the building began a new life cycle. This time, my parents themselves became the protagonists of the design, allowing change to happen continuously. Everything brought from the old home slowly filled the space: the old sofa, mahjong table, crafts, calligraphy, photos, tableware, books... Visiting guests are often invited directly to the dining room on the first floor to play cards while chatting with my mother as she prepares the meal. The large long table in the center of the living room is a depot for my parents' hobbies, always piled with magazines, tea sets, and snacks. My father has also started envisioning putting an inflatable pool in the atrium for his grandson, or setting up a hot pot table in the backyard during family gatherings. My parents' life experience did not become a constraint on the design. On the contrary, it helped us focus on the moments that truly matter, rather than products and concepts.

早期概念草图©也似建筑

节点设计过程草图©也似建筑

总平面©也似建筑

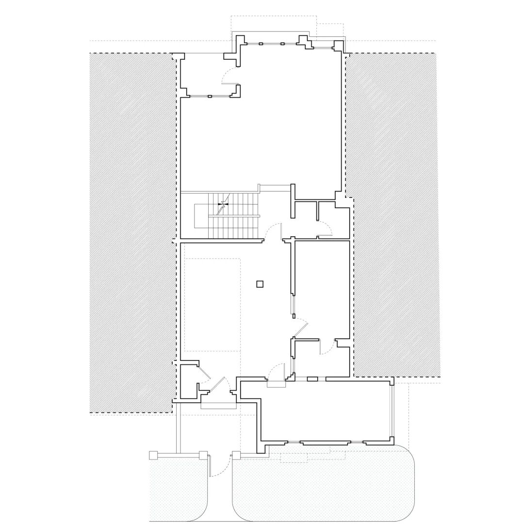
改造前一层平面图©也似建筑

改造后一层平面图©也似建筑

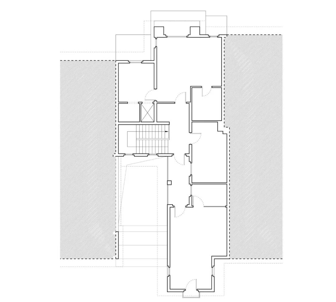
改造前二层平面图©也似建筑

改造后二层平面图©也似建筑

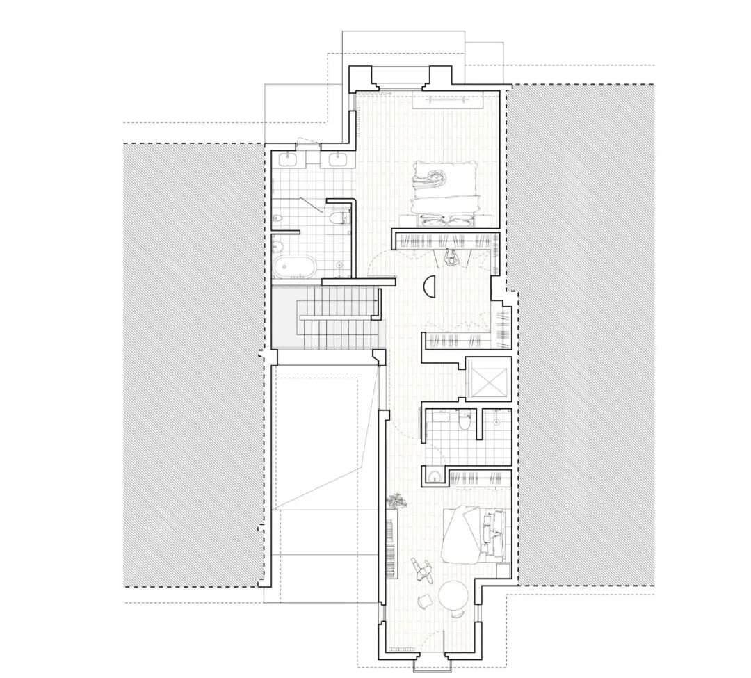
改造前三层平面图©也似建筑

改造后三层平面图©也似建筑

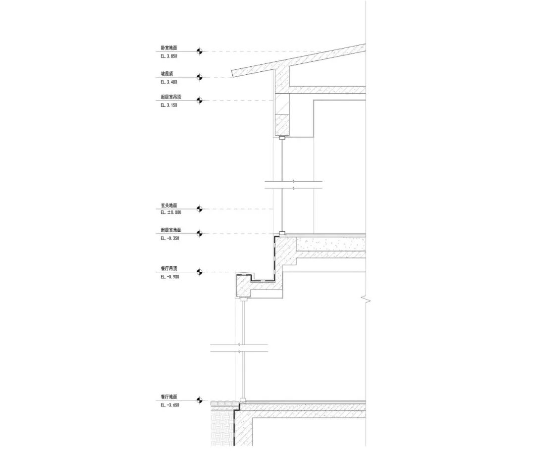
后院墙身剖面细部©也似建筑

天井墙身剖面细部©也似建筑

天井幕墙节点大样©也似建筑

天井入户门内外把手设计©也似建筑
设计单位:也似建筑
项目名称:父母宅
主持建筑师:罗韧、赵耀
设计团队:王盈力、温一帆
用地面积:158㎡
建筑面积:350㎡
设计时间:2020年-2023年
项目状态:已建成
Architect: YES.ARCH
Project Name: PARENTS’ HOUSE
Principals in Charge: Luo Ren、Zhao Yao
Design Team: Wang Yingli、Wen Yifan
Site area: 158㎡
Floor area:350㎡
Year:2020-2023
Status:Completed
特别声明
本文为自媒体、作者等档案号在建筑档案上传并发布,仅代表作者观点,不代表建筑档案的观点或立场,建筑档案仅提供信息发布平台。
66
好文章需要你的鼓励
参与评论
请回复有价值的信息,无意义的评论将很快被删除,账号将被禁止发言。
评论区